时间:2017-08-07 15:27:29
1、选择题 做平抛运动的物体,它的速度方向与水平方向夹角的正切值tanθ随着时间t变化而变化,下列关于tanθ与t关系的图像正确的是
[? ]
A.
B.
C.
D.
参考答案:B
本题解析:
本题难度:一般
2、选择题 关于平抛运动的说法正确的是( )
A.平抛运动是匀变速曲线运动
B.平抛物体在t时刻速度的方向与t时间内位移的方向相同
C.平抛物体在空中运动的时间随初速度增大而增大
D.若平抛物体运动的时间足够长,则速度方向将会竖直向下
参考答案:A、平抛运动仅受重力作用,是匀变速曲线运动,故A正确
B、平抛物体在t时刻速度的方向与水平方向夹角大于速度的方向与水平方向夹角,故B错误
C、平抛物体在空中运动的时间由高度决定,h=12gt2,与初速度无关,故C错误
D、即使平抛物体运动的时间足够长,速度方向与水平方向夹角将接近90°,但一定不是90°,故D错误
故选:A
本题解析:
本题难度:简单
3、选择题 如图所示,离地面高5.45m的O处用不可伸长的细线挂一质量为0.4kg的爆竹(火药质量忽略不计),线长0.45m.把爆竹拉起使细线水平,点燃导火线后将爆竹无初速度释放,爆竹刚好到达最低点B时炸成质量相等的两块,一块朝相反方向水平抛出,落到地面A处,抛出的水平距离为x=5m.另一块仍系在细线上继续做圆周运动通过最高点C.
空气阻力忽略不计,取g=10m/s2.求:
(1)爆炸瞬间反向抛出那一块的水平速度v1.
(2)继续做圆周运动的那一块通过最高点时细线的拉力T
参考答案:
(1) v1=5m/s
(2)T=43.78N
本题解析:设爆竹总质量为2m,刚好到达B时的速度为v,爆炸后抛出那一块的水平速度为v1,做圆周运动的那一块初速度为v2:
(1)平抛运动的那一块:
…①…(2分)
…②?…(2分)
由①②及H=5m,x="5m?" 得:v1=5m/s?…③…(1分)
(2)D到B机械能守恒:
…④…(2分)
爆竹爆炸,动量守恒:?
…⑤…(2分)
由③④⑤及L=0.45m得:v2=11m/s…⑥…(1分)
设向上做圆周运动的那一块通过最高点时速度为vC,由机械能守恒可得:
…⑦…(2分)
设最高点时线的拉力为T,由牛顿运动定律得:
…⑧…(2分)
由⑥⑦⑧得:T=43.78N…⑨…(2分)
本题难度:简单
4、选择题 在用小球、斜槽、重垂线、木板、坐标纸、图钉、铅笔做“研究平抛物体的运动”的实验中,关于实验操作,下列说法正确的是( )
A.斜槽轨道必须光滑
B.斜槽轨道末短可以不水平
C.应使小球每次从斜槽上相同的位置自由滑下
D.要使描出的轨迹更好地反映小球的真实运动,记录的点应适当多一些
参考答案:CD
本题解析:
本题难度:简单
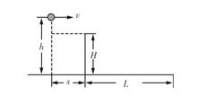
5、计算题 如图所示,排球网高为H,半场长为L,运动员扣球点高为h,扣球点离网水平距离为s。若运动员扣出的球水平飞出,且落在对方半场内,不计空气阻力,求:运动员扣球速度的取值范围。
参考答案:排球能过网的最小速度为vmin,
vmin=s/=s
排球不过边界的最大速度为vmax,vmax=(L+s)/=(L+s)
运动员扣球速度应在这两个值之间。
本题解析:略
本题难度:简单