时间:2018-10-01 01:53:23
1、计算题 在光滑的水平面上,质量为m1的小球A以速率v0向右运动。在小球A的前方O点有一质量为m2的小球B处于静止状态,如图所示。小球A与小球B发生正碰后小球A、B均向右运动。小球B被在Q点处的墙壁弹回后与小球A在P点相遇,PQ=1.5PO。假设小球间的碰撞及小球与墙壁之间的碰撞都是弹性的,求两小球质量之比m1/m2。
2、简答题 
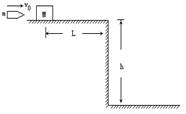
如图所示,高为h=10m的平台上,放一质量为M=9.9kg的木块,它与平台边缘的距离为L=1m.今有一质量m=0.1kg的子弹,以水平向右的速度
射入木块(时间极短),并留在木块中,木块向右滑行并冲出平台,最后落在离平台边缘水平距离x=
m处,已知木块与平台间的动摩擦因数为μ=
,g=10m/
.求:
(1)木块离开平台边缘时的速度;
(2)子弹射入木块的初速度
.
3、选择题 如图所示,在光滑的水平直线导轨上,有质量分别为2m和m,带电量分别为2q、q(q>0)的两个形状相同的小球A、B正相向运动,某时刻A、B两球的速度大小分别为vA、vB。由于静电斥力作用,A球先开始反向运动,它们不会相碰,最终两球都反向运动。则___(填选项前的字母)
A.vA>vB?B.vA<
vB?C.vA=
vB?D. vB>vA>
vB
4、选择题 A、B两球之间压缩一根轻弹簧,静置于光滑水平桌面上.已知A、B两球质量分别为2 m和m.当用板挡住A球而只释放B球时,B球被弹出落于距桌面水平距离为s的水平地面上,如图,问当用同样的程度压缩弹簧,取走A左边的挡板,将A、B同时释放,B球的落地点距桌面距离为(?)
A.
? B.
s? C.s? D.
s
5、选择题 图5-12,质量为m的人立于平板车上,人与车的总质量为M,人与车以速度v1在光滑水平面上向东运动。当此人相对于车以速度v2竖直跳起时,车的速度变为: ( )