时间:2020-08-15 23:24:48
1、实验题 某同学做了一次较为精确的测定匀加速直线运动的加速度的实验,实验所得到的纸带如图所示, 设0点是计数的起始点,相邻两计数点之间的时间间隔为0.1s。计数点0至2之间距离是9cm,0至3之间距离是15cm,则计数点1与0点的距离s1应为? ?cm,打计数点1时物体的速度大小是?m/s?;物体的加速度a =?m/s2.
2、实验题 (12分)(1)某学生用单摆测定重力加速度时,测出多组单摆的摆长l和运动周期T,根据实验数据作出T2—l图像。则(1)写出由单摆做间谐运动而得到的重力加速度的表达式g?。由图像计算出的重力加速度g?m/s2.(取π2=9.87)
(2)理论上该实验图像应该是一条过原点的斜线,而该同学由于在测摆长时未加上小球的半径,所以得到如图所示的图线,这样通过第一问的方法计算出来的重力加速度与正确操作相比,其结果?(填“偏大”、“偏小”、“相同”)
3、实验题 (13分)(1)要利用如图所示装置,验证m1、m2组成系统的机械能守恒.电磁打点计时器(电源频率为50Hz)竖直固定在铁架台上,m1一端连接纸带,另一端通过细绳跨过轻质定滑轮与m2相连,m2的质量大于m1,从高处由静止释放m2,m1拖着纸带打出一系列的点.
①下列实验操作,不必要的是_________,错误的是__________.(填序号)
A.将打点计时器接到学生电源的“直流输出”挡
B.用天平测出m1、m2的质量
C.测量纸带计数点间的距离
D.用秒表测量m2下落的时间
②如图是实验打出的一条纸带:0是由静止开始运动时打下的第一个点,相邻两计数点间还有4个点(图中未标出),计数点间的距离如图所示.
则
从O点到计数点5系统动能的增量
=___________J,系统势能的减少量
=___________J,(结果保留三位有效数字)
(2)某同学要测某一电阻的阻值(约3~5
),现有下列器材:
A.两节干电池?
B.电压表0~3V,内阻约
C.电流表0~0.6A,内阻约
?
D.滑动变阻器,0~
E.滑动变阻器,0~100
?
F.开关和若干导线
滑动变阻器采用限流接法,要较准确地测出待测电阻的阻值.
①滑动变阻器应选________;(填序号)
②某同学的实物接线如图所示,指出该同学接线中的错误_________________
③图中5个点是实验中测得的U、I值,作图并求出R=_______.(保留两位有效数字).
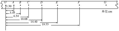
4、实验题 某次实验用打点计时器交流电的频率为50 Hz,纸带的记录如图所示,图中O点为纸带的第一个点,接下来的前几个点模糊,因此从A点开始每打五个点取一个
计数点,推测纸带的运动是?(填“加速运动”或“减速运动”)在打出A、F这两点的时间间隔中,纸带运动的平均速度是?m/s,vD =?m/s。
5、选择题 如图,一个小木块在斜面上匀速下滑,则小木块受到的力是( )
A.重力,弹力、下滑力和摩擦力
B.重力、弹力和下滑力
C.重力、弹力和摩擦力
D.重力、下滑力和摩擦力