时间:2020-08-09 23:10:11
1、选择题 质量为2kg的物体,只在两个力F1=2N、F2=10N的作用下,获得的加速度可能为(?)
A.3m/s2
B.4m/s2
C.5m/s2
D.8m/s2
参考答案:BC
本题解析:两个力的合力范围是:8 N≤F≤12 N,根据牛顿第二定律:
,4 m/s2≤a≤6 m/s2, BC正确,A、D错误。
本题难度:一般
2、计算题 (14分)如图所示,质量为M=1kg,长为L=1m的木板A上放置质量为m=0.5kg的物体B,平放在光滑桌面上,B位于
木板中点处,物体B与A之间的动摩擦因数为μ=0.1,B与A间的最大静摩擦力等于滑动摩擦力(B可看作质点,重力加速度g取10m/s2)。求:
(1)至少要用多大力拉木板,才能使木板从B下方抽出?
(2)当拉力为3.5N时,经过多长时间A板从B板下抽出?
(3)当拉力为3.5N时,此力至少要作用多长时间B才能从木板A上滑落?(最后结果可用根式表示)
参考答案:(1)1.5N
(2)
s
(3)
s
本题解析:(1)当拉力较小时,A和B可以相对静止一起向右作加速运动,此时A、B之间是静摩擦,对整体有:
隔离B有:
当静摩擦力达到最大静摩擦力时,是两者将发生相对滑动的临界状态,令
得
.
(2)当拉力为3.5N时,A物体的加速度为
,
得
;
B物体的加速度为
设经过时间
?A板从B板下抽出,则根据几何关系得:
得
,
(3)设拉力作用时间
1就撤掉,再经过时间t2,A、B速度相等且刚好到达A的左端,
则,
?得
?
又由A、B位移差等于
,有
?
代入数值得:
s
本题难度:简单
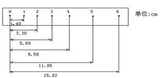
3、实验题 某同学在“用打点计时器测速度”的实验中,用打点计时器记录了被小车拖动的纸带的运动情况,在纸带上确定出0、1、2、3、4、5、6共7个测量点。其相邻点间的距离如图所示,每两个相邻的测量点之间的时间间隔为
,完成下面问题。
(1)根据打点计时器打出的纸带,我们可以直接得到的物理量是??
A.时间间隔
B.加速度
C.瞬时速度
D.平均速度
(2)根据纸带上各个测量点间的距离,某同学已将1、2、3、5点对应的时刻的瞬时速度进行计算
并填入表中,请你将4点对应的时刻的瞬时速度填入表中;(要求保留3位有效数字)
| 瞬时速度 | v1 | v2 | v3 | v4 | v5 |
| 数值(m/s) | 0.165 | 0.214 | 0.263 | ? | 0.363 |


参考答案:(1)A
(2)0.314
(3)图略
(4)0.005m/s2
本题解析:略
本题难度:一般
4、选择题 如图1所示,不计绳的质量及绳与滑轮的摩擦,物体A的质量为M,水平面光滑,当在绳端施以F=mg N的竖直向下的拉力作用时,物体A的加速度为a1,当在B端挂一质量为m kg的物体时,A的加速度为a2,则a1与a2的关系正确的是(?)
A.a1=a2
B.a1>a2
C.a1<a2
D.无法判断
参考答案:B
本题解析:第一种情况物体所受的合外力为F,由牛顿第二定律得:
;
第二种情况物体A和B的加速度大小相等,方向不同,设绳子的拉力为Fo,由牛顿第二定律得:
对物体A:
对物体B:
联立两式可得:
由以上分析可得:
,故B对。
本题难度:简单
5、填空题 在水平地面上有质量为4kg的物体,物体在水平拉力F作用下由静止开始运动,10s后拉力减为F/3,该物体的速度图象如图所示,则水平拉力F=________N,物体与地面间的动摩擦因数μ=____________。
参考答案:9,0.125
本题解析:
本题难度:一般