时间:2019-12-13 01:25:31
1、选择题 电路中C是平行板电容器,S先触1后又扳到2,若这时将平行板的板间距拉大一点,下列说法正确的是( )
A.平行板电容器两板的电势差不变
B.平行扳电容器带电量不变
C.平行板电容器两板的电势差增大
D.平行板电容器两板间的电场强度不变
参考答案:BCD
本题解析:
本题难度:一般
2、选择题 如图,一平行板电容器与一电源连接,电源两端的电压保持不变,若使电容两板间的距离变小,则( ? )
A.电容器的电容比原来减小
B.电容器两板间的电压比原来减小
C.电容器所带的电荷量比原来增加
D.电容器两板间的电场强度比原来增加
参考答案:CD
本题解析:由电容器的电容公式
可知当电容两板间的距离变小时电容增大,A错;电容器始终与电源相连电压不变,B错;由电容器电量Q=CU可知电容增大,电压不变,电容器带电量增大,C对;由E=U/d可知场强增大,D对;
点评:明确电容相关量的变化,熟记电容器公式和Q=CU以及各物理量间的关系,能熟练的应用公式进行推导
本题难度:简单
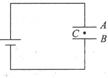
3、填空题 如图所示,平行金属板A与B相距5cm,电源电压为10v,则与A板相距1cm的C点的场强为?V/m
参考答案:200
本题解析:略
本题难度:简单
4、填空题 如图所示是探究影响平行板电容器电容大小因素的实验装置。
①关于此实验装置中的静电计,下列说法中正确的是?。(选填选项前面的字母)
A.静电计指针张角的大小反映了平行板电容器所带电荷量的多少
B.静电计指针张角的大小反映了平行板电容器两板间电压的大小
C.静电计的外壳与A板相连接后可不接地
D.可以用量程为3V的电压表替代静电计
②让圆形平行板电容器带电后,静电计的指针偏转一定角度。不改变A,B两板所带的电荷,且保持两极在竖直平面内。开始时两板正对,现要使静电计指针偏角变大,下列做法中可行的?。(选填选项前面的字母)
A.保持B板小动,A板向上平移
B.保持B板不动,A板向右平移
C.保持A、B两板不动,在A、B之间插入一块绝缘介质板
参考答案:①B、C;②A
本题解析:①静电计指针张角可表示出两板间电势差的大小,所以A错误B正确
因为目的就是为了让两板间电势差与静电计两铂片上电势差相等,所以静电计的外壳与A板相连接后可不接地,故C正确
电压表有示数必须有电源,所以不可以用量程为3V的电压表替代静电计,故D错误
故选BC
②现要使静电计指针偏角变大,即电势差增大,
,电荷量不变,所以电容减小,
,保持B板小动,A板向上平移,正对面积减小,电容减小,符合题意,故A正确
保持B板不动,A板向右平移,板间距离减小,电容增大,不符合题意,故B错误
保持A、B两板不动,在A、B之间插入一块绝缘介质板,增大介电常数,电容增大,不符合题意,故C错误
故选A
本题难度:一般
5、选择题 关于电容器的下列说法中正确的是
A.直流电能通过电容器
B.交流电能通过电容器
C.交流电不能通过电容器
D.直流电、交流电都能通过电容器
参考答案:B
本题解析:电容器在电路中的作用是通交流,阻直流,所以直流电不能通过电容器,交流电能通过电容器,B正确。
本题难度:简单