时间:2019-06-23 22:32:35
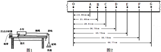
1、简答题 如图1所示,某组同学借用“探究a与F、m之间的定量关系”的相关实验思想、原理及操作,进行“研究合外力做功和动能变化的关系”的实验:
①为达到平衡阻力的目的,取下细绳及托盘,通过调整垫片的位置,改变长木板倾斜程度,根据打出的纸带判断小车是否做______运动.
②连接细绳及托盘,放人砝码,通过实验得到图2所示的纸带.纸带上0为小车运动起始时刻所打的点,选取时间间隔为0.1s的相邻计数点A、B、C、D、E、F、G.实验时小车所受拉力为0.2N,小车的质量为0.2kg.
请计算小车所受合外力做的功W和小车动能的变化△Ek,补填表中空格(结果保留至小数点后第四位).
| O-B | O-C | O-D | O-E | O-F W/J 0.0432 0.0572 0.0734 0.0915 ______ △Ek/J 0.0430 0.0570 0.0734 0.0907 ______ |
参考答案:①为保证拉力等于小车受到的合力,需平衡摩擦力,即将长木板左端适当垫高,轻推小车,小车做匀速直线运动;
②拉力的功为:W=F?xOF=0.2N×0.5575m=0.1115J;
F点的瞬时速度为:vF=OG-OE2T=0.6677m-0.4575m2×0.1s=1.051m/s;
故F点的动能为:EKF=12mv2F=12×0.2×1.0512J=0.1105J;
③砝码盘和砝码整体受重力和拉力,从O到F过程运用动能定理,有:[(M+m)g-F]xOF=EKF;
代入数据解得:m=0.015kg;
故答案为:①匀速直线;?②0.1115,0.1105;?③0.015.
本题解析:
本题难度:一般
2、选择题 下列关于常见力的说法中正确的是( )
A.弹力、重力、支持力、摩擦力都是按照性质命名的
B.有规则形状的物体,其重心就在物体的几何中心
C.两接触面间有摩擦力存在,则一定有弹力存在
D.物体之间接触就一定产生弹力
参考答案:C
本题解析:
本题难度:简单
3、选择题 如图所示,在一次救灾工作中,一架沿水平直线飞行 的直升机A,用悬索(重力可忽略不计)救护困在湖水中的伤员B.在直升机A和伤员B以相同的水平速度匀速运动的同时,悬索将伤员吊起,在某一段时间内,A、B之间的距离以l=H-t2(式中H为直升机A离地面的高度,各物理量的单位均为国际单位制单位)规律变化,则在这段时间内( )
A.悬索的拉力等于伤员的重力
B.伤员处于超重状态
C.从地面看,伤员做加速度大小、方向均不变的曲线运动
D.从地面看,伤员做速度大小增加的直线运动
参考答案:由l=H-t2可知伤员在竖直方向的运动是加速度等于a=2m/s2的匀加速直线运动,竖直方向只受两个力的作用,所以悬索的拉力大于伤员的重力,所以A错误,B正确.
他在水平方向做匀速直线运动,竖直方向上是匀加速直线运动,那么伤员的运动,从地面看,就是类平抛运动,故C正确、D错.
故选BC.
本题解析:
本题难度:一般
4、选择题 下面所列举的单位,属于国际单位制中的基本单位的是(? )
A.
B.
C.
D.
参考答案:AD
本题解析:本题考查单位制。质量和时间是国际单位制中的基本量,力和速度不是国际单位制中的基本量,所以AD是国际单位制中的基本单位,BC不是,选AD。
本题难度:简单
5、简答题 (1)如图所示是某同学在做匀变速直线运动实验中获得的一条纸带.
①已知打点计时器电源频率为50Hz,则纸带上打相邻两点的时间间隔为______.
②ABCD是纸带上四个计数点,每两个相邻计数点间有四个点没有画出.从图中读出A、B两点间距s=______;C点对应的速度是______(计算结果保留三位有效数字).
(2)现要验证“当质量一定时,物体运动的加速度与它所受的合外力成正比”这一物理规律.给定的器材如下:一倾角可以调节的长斜面(如图)、小车、计时器一个、米尺.
填入适当的公式或文字,完善以下实验步骤(不考虑摩擦力的影响):
①让小车自斜面上方一固定点A1从静止开始下滑到斜面底端A2,记下______.
②用米尺测量A1与A2之间的距离s,则小车的加速度a=______.
③用米尺测量A1相对于A2的高度h.设小车所受重力为mg,则小车所受的合外力F=______.
④改变______,重复上述测量.
⑤以h为横坐标,1/t2为纵坐标,根据实验数据作图.如能得到一条过原点的直线,则可验证“当质量一定时,物体运动的加速度与它所受的合外力成正比”这一规律.
参考答案:(1)①带上打相邻两点的时间间隔T=1f=150s=0.02s
? ②A、B间的距离S=0.70cm.
? ③B、D间的时间间隔T=0.1s
? 则vc=xBD2T=22×0.1×10-2 m/s=0.100m/s
故答案是:①0.02s;②0.70cm;0.100m/s;
(2)①记下所用的时间为t;
②小车做的是初速度为零的匀加速直线运动,根据运动规律:s=12at2,解得:a=2st2
③小车所受的合外力是重力沿斜面的分力,大小为:mgsinθ,θ为斜面的夹角,sinθ=对边斜边=hs,所以合力为:F=mgsinθ=mghs.
④用动能定理可解得:h=2s2gt2,所以h与1t2成正比,所以我们需要改变h,所以需要:改变斜面的倾角或斜面高h
故答案为:①所用的时间t;②2st2;③mghs;④斜面的倾角或斜面高h.
本题解析:
本题难度:一般