时间:2024-11-22 05:16:04


1、单项选择题 某航次船舶装载袋装货物,则装货前船方应做的准备工作不包括对()的准备。
A.装卸设备
B.货物处所
C.照明设施
D.以上都是
2、单项选择题 根据忌装原则,鲜半夏和饼干的最低配装要求是()。
A.不同舱
B.不同室
C.同室不相邻
D.可以相邻堆装
3、单项选择题 选港货是指装船时未确定目的港,只选定几个可能的卸货港,在船舶到达第一个先卸港前的()才电告其确定的卸货港货物
A.12~24h
B.24~36h
C.24~48h
D.36~48h
4、单项选择题 根据忌装原则,橡胶与酸,碱.盐等货物配置时应()。
A.相邻装载
B.不相邻装载
C.不同舱室装载
D.不同货舱装载
5、单项选择题 根据忌装原则,小五金和丝绸的最低配装要求是()。
A.不同室
B.不同舱
C.可以相邻装载
D.同室不相邻
6、单项选择题 根据忌装原则,下列()可以相邻装载?
A.浆和生铁
B.罐头食品和木材
C.橡胶和纸张
D.烟叶和茶叶
7、单项选择题 板尺(BM,boardfeet,boardmeasurementfeet)用于计量()。
A.危险品
B.液体气体
C.液体散装化学品
D.木材
8、单项选择题 桶装液体货舱位宜选择在()。
A.底舱底部
B.二层舱舱口四周
C.视货物包装情况而定
D.底舱不怕污染货上部
9、单项选择题 根据SOLAS1974的要求,下列()应配备《货物系固手册》。
A.高速船
B.集装箱船
C.兼运杂货的散货船
D.以上都是
10、单项选择题 根据忌装原则,烤烟可与()同舱装载.
A.橡胶
B.化妆品
C.玻璃制品
D.丝绸
11、单项选择题 根据忌装原则,金属制品与酸,碱,盐等腐蚀性货物的最低忌装要求是()。
A.不同室
B.不相邻
C.相隔一个货舱
D.不同舱
12、单项选择题 丝及丝织品与酸,碱.盐等有腐蚀性和潮解性货物忌装的最低要求是()。
A.不同室
B.不相邻
C.相隔一个货舱
D.不同舱
13、单项选择题 某轮承运一批玻璃制品,其舱位最好选择在()。
A.二层舱,靠近舱口位
B.二层舱,靠近前后横舱壁
C.底舱,靠近前后横舱壁
D.底舱,靠近左右两舷
14、单项选择题 装载木材时应按海上天气情况和木材的堆高度确定立柱的强度,但其强度不必超过()的强度。
A.舷墙
B.主甲板
C.舱盖
D.吊索
15、单项选择题 杂货船配积载时,先配底舱后戌二层舱的原因是()。
A.底舱货物方便
B.底舱在水线下受水压力作用
C.底舱高度大,载货数量多
D.二层舱装卸货物方便
16、单项选择题 航行中发现装有鱼粉的纲舱有烟雾,此时应()。
A.开舱检查
B.开舱并用水扑救
C.封闭该舱舱盖及通风孔
D.以上都可以
17、单项选择题 根据忌装原则,忌油污染货物与油污染货物的忌装要求是()。
A.相邻装载
B.不同舱装载
C.不相邻装载
D.不同舱室装载
18、单项选择题 下列()不属于贵重货物。
A.精密仪器
B.蜂蜜
C.古董
D.文物
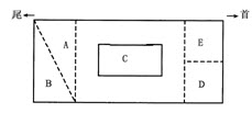
19、单项选择题
货物积载图中,货物配置如图示,其中B表示装载于()。

A.二层舱舱口位
B.底舱上层两舷
C.二层舱上层两舷
D.二层舱上层舱口四周
20、单项选择题 下列()不是便于装卸角度考虑货物配装的。
A.舱内最上层货物应在甲板下具有足够的空间高度共工人操作
B.袋装货物采用直立堆垛方式或纵横压缝堆垛方式堆垛
C.单件重量较大的货物,尽量配装在舱口下方附近,尤其是重大件货
D.固体散装货尽量装在中部底舱
21、单项选择题 根据忌装原则,碳化钙可与()混装
A.木材
B.重烧镁
C.精选铜矿
D.肠衣
22、单项选择题 为保证二层舱舱盖能顺利打开,防堵货物体积()防堵舱容
A.大于
B.小于
C.等于
D.视具体情况而定
23、单项选择题 木材最好的隔票方法是()。
A.钢丝绳
B.油漆
C.彩带
D.以上均是
24、单项选择题 根据忌装原则,水泥和铵盐的最低配装要求()。
A.不可同室
B.不可同舱
C.可以同室
D.不可相邻
25、单项选择题 为保证货运质量,根据忌装原则,以下()货物的搭配是可行的。
A.砂糖的大米分舱装载
B.茶叶和五金相邻装载
C.茴香和罐头食品同舱装载
D.以上都不对
26、单项选择题 移动式罐柜是非永久性固定在船上,容积为()及以上的且外壳装有外部稳定构件和运输所必需的维修工具和结构性设备的罐柜,可用于装载()货物。
A.450L;液体、气体和固体
B.450L;液体和气体
C.1000L;液体、气体和固体
D.1000L;固体和气体
27、单项选择题 根据忌装原则,橡胶可与()同舱室装载
A.原木
B.大理石
C.硫酸
D.白瓜子
28、单项选择题 某轮某航次装载猪鬃,家禽毛,大蒜三种货物,下列()配装方案是正确定的。
A.三种货物应各配装一个舱室
B.三种货物可以配置于同一舱室
C.猪鬃和大蒜不可以同装一室,此外无忌装要求
D.以上都错
29、单项选择题 某轮在同一货舱内装运数票不同到港的木材,应如何隔票较好()。
A.自然隔票
B.用帆布或油布隔票
C.用钢丝绳或油漆隔票
D.A、B、C均可
30、单项选择题 货舱通风的目的的中()防止产生汗水
A.降低舱内温度
B.降低舱内露点
C.排除有害气体
D.提供新鲜空气
31、单项选择题 下列()不属于食品货物。
A.茶叶
B.味素
C.杏仁
D.肠衣
32、单项选择题 下列()不属于气味货物。
A.蚕蛹粉
B.尿素
C.红葱
D.味素
33、单项选择题 根据忌装原则,干电池与酸性货物的忌装要求是()。
A.不相邻
B.不同舱装载
C.不同舱室装载
D.可以同舱室但不能相邻
34、单项选择题 所谓货物的扎位堆装是指()。
A.在舱的前半部分装一个港的货物,后半部分装另一港的货物
B.将先卸的轻货配于船的后半部分,后卸的重货配于该舱的前半部分
C.将后卸的轻货配于船的后半部分,先卸的重货配于该舱的前半部分
D.将先卸的轻货配于船的前半部分,后卸的重货配于该舱的后半部分
35、单项选择题 铝锭可与()混装
A.生铁
B.锌块
C.煤
D.木材
36、单项选择题 酸类货物不得与()混装
A.莹石
B.氟石
C.橡胶制品
D.以上均不可
37、单项选择题 食品类如袋装的烟叶、辣椒粉、生姜粉等货属于()。
A.气味货
B.怕潮货
C.A和B均是
D.A和B均不是
38、单项选择题 某轮承运一批塑料桶装液体,应配置在何舱位较合适()。
A.各二层舱的舱口位
B.各底舱的上层舱口位
C.各二层舱后部,避开舱口位
D.各底舱的底部
39、单项选择题 根据忌装原则,下列各组货物不能同舱积载的是()。
A.纸浆与砂渣
B.铝块与生铁
C.A和B都不是
D.A和B都是
40、单项选择题 自然通风中,将下风一侧通风筒口全部转向上风,上风一侧的通风筒转向下风的通风方式,称为()。
A.排气通风
B.机械通风
C.循环通风
D.干燥通风
41、单项选择题
编制船舶积载图确定货物在船上配置及堆装时应保证()
①货物的完好;
②船舶及人员的安全;
③装卸方便;
④缩短船舶在港停泊时间,加速周转;
⑤良好的营运经济效果
A.①②③
B.①②③④
C.①②③⑤
D.①②③④⑤
42、单项选择题 需要专业化码头作业的货物,应()。
A.尽量集中配装
B.适当分散配装
C.尽量分散配装
D.以上均不对
43、单项选择题 根据忌装原则,水泥可以和以下()同舱室装载。
A.铵肥
B.滑石粉
C.氧化镁
D.以上均不可
44、单项选择题 装载机车、变压器等重件货物时,系固钢丝绳每端接头所用绳夹的鞍座部分应装在(),U形螺栓应装在()。
A.动载段;静载段
B.静载段;动载段
C.动载段;缩短端段
D.A和C均可
45、单项选择题 在查取露点过程中,由露点查算表可知,湿球温差越大,空气露点()。
A.越小
B.不变
C.越大
D.不确定
46、单项选择题 在可能的情况下,单一气味货应尽量()。
A.分散配于各舱内
B.集中配于某一任意货舱内
C.集中配于容积较小的首尾底舱内
D.集中配于中部大舱的底舱内
47、单项选择题
船上装载扬尘货物时应做到,()。
I与怕污染的货物不相邻,
II最好装于舱的底部堆装面积尽量小
III尽量后装先卸,
IV装后应加盖并清扫
A.I 、II、 IV
B.I 、III、 IV
C.I 、II、 III
D.I 、II、 III、 IV
48、单项选择题 板尺(BMBoardFeetBoardMeasurementFeet)用于计量()。
A.危险品
B.液体气体
C.液体散装化学品
D.木材
49、单项选择题 关于配积载图的编制及作用,以下说法错误的是()。
A.配积载图中各批货载之间应用虚线分割
B.绘制配积载图要求清晰,整洁,简易,易懂
C.配积载图是船舶货运的指示文件,港方或货主可以根据需要自行决定作一些适当修改
D.配积载图,是发生货运事故时据以查证原因和分清责任的原始资料,具有一定的法律效力
50、单项选择题 某前四后一型船舶装载桶装白脱油,以下舱位()是合适的。
A.No.5舱的底舱
B.No.3舱的底舱
C.任何舱位均可
D.除了No.4舱以外的任何舱室
51、单项选择题
SOLAS 1974要求船舶配备的《货物系固手册》不适用于()船舶。
①高速船;②海上供给船;③仅载运固体散货的散货船;④集装箱船;⑤散化船;⑥兼运杂货的散货船。
A.①②③⑤⑥
B.①②③⑤
C.③⑤
D.①③⑤
52、单项选择题 根据CSS规则,船上装卸设备()货物运输单元。
A.属于
B.不属于
C.若非永久性固定在船上则属于
D.若永久性固定在船上则属于
53、单项选择题 实际营运中,指导卸货港卸货工作的图表是()。
A.计划配载图
B.货物实际积载图
C.货物提供的有关图表
D.承运公司提供的有关图表
54、单项选择题
下列()为《货物系固手册》的主要内容。
①手册编制依据、定义等;
②货物堆装与系固原则;
③固定系固设备及其布置;
④船舶载运货物的安全操作;
⑤系固方案核算方法。
A.①②③④⑤
B.①②③④
C.②③④⑤
D.①④⑤
55、单项选择题 某轮某货舱内配装咸干羊皮(捆装)及镁锭(箱装)两种货物,羊皮装于镁锭的上部,中间衬以塑料布,则配装方案()。
A.正确
B.塑料布改用油布即可
C.两票货物不要上下配装
D.B,C都可以
56、单项选择题 某轮装载木材到港,开舱后有两名工人下舱死亡,由主要原因可能是()。
A.因舱内缺氧,工人窒息死亡
B.因木材会放出有毒气体,工人中毒死亡
C.A,B都可能
D.A,B都不可能
57、单项选择题 某轮装载一批塑料桶装植物油,以下哪个舱位最为合适:()
A.中部货舱底舱上层
B.中部货舱的二层舱
C.首尾部货舱的底舱打底
D.中部货舱的底舱打底
58、单项选择题 在货物配载图中,二层舱的图示法以( )表示。
A.侧视图
B.正视图
C.俯视图
D.A、B均可
59、单项选择题 为保证卸货港顺序,最先到达目的港的货物可配装在()。
A.首舱底部
B.二层舱舱口位
C.底舱四周
D.A和B
60、单项选择题 桶装肠衣应配装尾机型船()较适宜。
A.中部二层舱
B.首尾部二层舱
C.中部底舱
D.首尾部底舱
61、单项选择题 航行中为防止货温过高,应()。
A.开舱通风
B.昼夜通风
C.适当通风
D.以上均可
62、单项选择题
货物配载图中,某舱底舱如图所示。其中D的货位是()。

A.上层舱口位
B.上层中间部位
C.上层舱口位堆成倒三角形
D.上层中间部位堆成倒三角形
63、单项选择题 固体散货()杂货。
A.属于
B.非整船运输时属于
C.不属于
D.无法确定
64、单项选择题 根据忌装原则,下述()可与精密仪器相邻装载
A.袋盐
B.玻璃
C.硫酸
D.矿砂
65、单项选择题 当()时,装载机械设备类货物的货舱将产生汗水
A.舱内空气露点高于货物温度
B.外界空气露点低于货物温度
C.外界空气温度低于舱内货物温度
D.舱内空气温度高于舱外空气温度
66、单项选择题 在查取露点过程中,由露点查算表可知,干湿球温差越大,空气露点()。
A.越小
B.不变
C.越大
D.不确定
67、单项选择题
下述()属于货物事故.
①货物在装卸过程中严重泄漏;
②由于错装而载不当而造成的有货无单;
③由于货物爆炸引起不身伤亡;
④货物逾期到达;
⑤由于配积载不当而造成船体局部强度受损
A.②③④⑤
B.①③④⑤
C.①②③④
D.①②③④⑤
68、单项选择题
货物配载图中,二层舱如图所示。其中B的货位是()。

A.舱的后部右舷
B.舱的后部左舷
C.舱的后部下层
D.舱的后部上层
69、单项选择题 在货物积载图中,二层舱的图示法以表示()。
A.侧视图
B.正视图
C.俯视图
D.A、B均可
70、单项选择题 普通货船装载气味货在可能的情况下应尽量集中选配在()。
A.上甲板
B.首尾舱的二层舱
C.首尾货舱的底舱
D.中部货舱底舱
71、单项选择题 根据忌装原则,铵肥与碱性货物的忌装要求是()。
A.不相邻
B.不同舱
C.不同室
D.相隔一个舱室
72、单项选择题 编制货物配积图的八项要求可以归纳为“安全、优质、快速、经济”其中:②从优质角度考虑的主要问题是()。
A.正确合理的舱面积载
B.保证货物动输质量
C.满足中途港货物的装卸货顺序的要求
D.A+B+C
73、单项选择题 根据经验,对装运呆类的货舱进行通风时,其通风换气时应以每昼夜换气()次为宜
A.2~4次
B.5~10次
C.15次以上
D.20次以上
74、单项选择题 从便利装卸角度,小批量货物应尽量(),不宜()。
A.平铺,扎位装载
B.扎位装载,整舱平铺
C.平铺,左右装载
D.扎位装载,左右装载
75、单项选择题 以下()货物属于清洁货。
A.大米
B.滑石粉
C.纸浆
D.以上都是
76、单项选择题 根据忌装,箱装水五金与汽车轮胎在舱内应()堆装
A.两票货不可同室配装
B.轮胎在下,小五金在上
C.两票货物不可相邻配装
D.两票货可相邻配装
77、判断题 输精管串珠样狭窄与扩张并钙化,多提示为结核所致。
78、单项选择题 过磷酸钙不得与()货物混装
A.机械
B.锰矿
C.碱类
D.五金
79、单项选择题 经测定某舱舱内露点温度为12℃,大气的露点温度为30℃,此时舱内货物已有霉变迹象,则应()。
A.应进行旺盛通风
B.应进行缓慢的自然通风,
C.只能使用空气干燥装置进行"再循环"通风
D.断绝自然通风便可进行机械通风
80、单项选择题 焦炭不得与()混装
A.轻烧镁
B.硫化铁
C.五金
D.骨粉
81、单项选择题
装货前船方对舱内设备的检修包括()的检修。
①测深管;②人孔盖;③污水沟;④梯道;⑤各种管系;⑥通风设备和消防设备
A.②③④⑤⑥
B.①②③④⑤⑥
C.①②③⑤⑥
D.①②④⑤⑥
82、单项选择题 根据1974SOLAS的要求,()可不配备《货物系固手册》。
A.高速船
B.集装箱船
C.油船
D.海上供给船
83、单项选择题
航次船舶装载木材,则装货前船方应做的准备工作包括()。
①装卸设备检查、修理;②货舱内适当清扫;③系固设备检查修理;④木材载重线勘绘;⑤货舱密闭性检查
A.①②③⑤
B.②③④⑤
C.①②③④
D.①②③④⑤
84、单项选择题 根据忌装原则,砂糖和茶叶的最低配装要求是()。
A.可以相邻
B.不可相邻
C.不可同舱
D.不可同室
85、单项选择题 某轮某航次测得舱内空气的温度为24℃,露点温度为23℃;外界空气的温度为13℃,露点温度为12℃此时应如何通风?()
A.应断绝通风
B.可以进行自然排气的自然通风
C.只能进行用空气干燥装置的机械通风
D.可以进行旺盛的对流循环自然通风
86、单项选择题 根据忌装原则,以下属于货物积载不当的是()。
A.橡胶配置于深舱内
B.箱装茶叶配置于机舱旁的货舱内
C.桶装石蜡配置于前三后一型船舶的第三舱
D.A、B、C都是
87、单项选择题 下列()不属于扬尘污染货物。
A.炭黑
B.膨润土
C.镁砂
D.红粉
88、单项选择题 非金属捆卷货在积载时()。
A.可以作打底货
B.视具体情况而定
C.它们的滚动方向应向船舶首尾方向
D.它们的滚动方向应向船舶左右方向
89、单项选择题 指导装货港货工作的配积载图是()。
A.计划配载图
B.货物实际积载图
C.货主提供的有关图表
D.理货公司提供的有关图表
90、单项选择题 下列()不属于贵重品货物。
A.精密仪器
B.蜂蜜
C.古董
D.文物
91、单项选择题
舱内货物应紧密堆装,其目的是()。
①防止货物移动;②减小货物亏舱;③保证货物通风;④降低货物渗透率
A.①②
B.②③④
C.①③④
D.①②③④
92、单项选择题
下列()部位属于怕热货应远离的热源
①机舱②厨房③加温油舱④锅炉间⑤滑油舱
A.①③
B.①③④
C.①④⑤
D.①②③④
93、单项选择题 某轮某航次装载棉花,航行中发现某舱有烟雾,以下所采限措施正确的是()。
A.开舱检查
B.开舱扑救
C.封闭该舱通风筒及舱盖并进行扑救
D.A、B、C都可以
94、单项选择题 编织袋装货物的堆码方法中压缝堆码是指()
A.上层货件压在下层货件接缝处
B.袋口朝上一个方向直上直下地堆码
C.袋口朝前后两个方向直上直下地堆码
D.上层货件横向压在下层货件纵向接缝处
95、单项选择题 请问下列()不属于气味货物。
A.生皮
B.猪鬃
C.蜂蜜
D.禽毛
96、单项选择题 某轮机舱旁设有一深舱,本航次装货结束,深舱内配装有桶装松香共几层,则下列说法正确的是()。
A.配装方案适合
B.配装方案不合适,因为深舱靠近机舱,松香怕热
C.配装方案不合适,因松香怕热且堆装层数太多
D.配装方案不合适,因为深舱应装液体,不能装包装货
97、单项选择题 根据CSS规则,下列()不属于货物运输单元。
A.车辆
B.散装生铁
C.集装箱
D.中型散装容器
98、单项选择题
为了保证货物运输质量,对普通干货舱的要求包括()
①清洁②干燥③无异味④无杂质⑤水密和设备完好⑥无铁锈⑦无虫害
A.①②③④
B.③④⑤⑥
C.①②③⑤⑦
D.①②③④⑤⑥⑦
99、单项选择题 某前三后一型船舶装载大桶盐渍肠衣,以下()舱位是合理的。
A.No.2舱底
B.No.3,No.4的底舱
C.No.1,No.2的二层舱
D.No.2,No.3的二层舱
100、单项选择题 以下货物事故产生的原因中()不属于货舱不适货及其设备不符合要求
A.货舱有异味,造成货物串味导致货损
B.货舱通风设备失灵,通风不及时造成货物霉烂
C.货舱盖没有关紧,造成货舱进水,使货物不湿
D.货舱开口封闭锁贤装置不良,造成货舱进水,引起货损
101、单项选择题 编制货物配积图的八项要求可以归纳为“安全、优质、快速、经济”。其中:从安全角度考虑的主要问题是()。
A.确保船体强度不受损伤
B.保证船舶具有适当的吃不差
C.保证船舶具有适度稳性
D.A+B+C
102、单项选择题 为扩大作业场地,在底舱配装不同目的港的货物时,应()。
A.各港货物在不同方位处
B.各港货物左右舷配置
C.各港货物配在不同层次处
D.按到港反顺序自舱四周向舱口安排
103、单项选择题 根据忌装原则,茶叶与酸性货物的忌装要求是()。
A.不相邻
B.不同舱
C.不同室
D.相隔一个舱室
104、单项选择题 在货物积载图中,底舱的图示法以()表示。
A.侧视图
B.俯视图
C.正视图
D.A或B
105、单项选择题 食品类气味货如烟叶、辣椒、调料等具有()。
A.散味性
B.感染性
C.散味和感味双重性
D.以上均不是
106、单项选择题 根据忌装原则,下列()属于货物搭配不当。
A.卫生球与尼龙制品同室装载
B.花生米和丝绸同室配装
C.五金和捆装丝绸相邻配装
D.A、B、C都是
107、单项选择题
物配载图中,某舱底舱如图2所示。其中A的货位是()。

A.下层前部
B.下层后部
C.下层左舷
D.下层右舷
108、单项选择题
以下()货物属于怕潮货。
①大米;②罐头食品;③茶叶;④烟叶;⑤化肥。
A.①③④
B.②③④⑤
C.②③④
D.①②③④⑤
109、单项选择题 根据经验,单件重400~600千克的大桶装货物,其堆高就不超过()层
A.2
B.3
C.4
D.5
110、单项选择题
实际营运中,当外界空气露点低于舱内空气露点,且外界空气温度高于舱内空气露点时,对无干燥通风装置的船舶应进行()
①排气通风②大量通风③循环通风④少量通风⑤断绝通风
A.⑤
B.②③
C.①④
D.①②③④
111、单项选择题 根据经验,单件重300~400千克的大桶装货物,其堆高就不超过()层
A.2
B.3
C.4
D.5
112、单项选择题 因空气不流通,湿度增加而在舱内产生水珠称为()。
A.舱汗
B.自由水
C.水汽
D.流态化所生液体
113、单项选择题 下列()不包括在《货物系固手册》中。
A.手册编制依据、定义
B.系固设备及其布置
C.航次货物的系固方案
D.系固方案的核算方法
114、单项选择题 根据忌装原则,砂糖涌与下列()货物同舱装载
A.水果
B.罐头
C.玻璃
D.工艺品
115、单项选择题 棉织品不得与()同舱装载。
A.颜料
B.皮革制品
C.玻璃
D.柳制品
116、单项选择题 船舶装载不散发水分的货物由寒冷地区驶往暖湿地工时,为使舱内不产生汗水应()。
A.断绝通风
B.进行少量通,风
C.追加干燥空气进行再循环通风
D.进行少量通风
117、单项选择题
杂货船的配积载图上每一货位应标明()
①货物关单号②货物学名③卸货港④货物重量⑤货物体积或件数⑥包装形式⑦装货港
A.①②④⑤⑥⑦
B.①②③④⑤⑦
C.①②③④⑤
D.①②③④⑤⑥⑦
118、单项选择题 根据忌装原则,尼龙及其制品不能和下列()同舱装载
A.樟脑
B.五金
C.棉织品
D.玻璃
119、单项选择题 ()属于固体散装货物。
A.精矿粉
B.蜂蜜
C.生丝
D.盘圆
120、单项选择题 可以使用相同属具装卸的货物,应()
A.在配装时不予考虑
B.尽可能分别配装于不同货舱
C.合理配装使其尽可能一次装舱
D.B和C
121、单项选择题 移动式罐柜系固时,其对系固角要求为()。
A.防滑目的对应不大于25°,防翻倒目的时应不小于40°~60°
B.防滑目的对应不小于25°,防翻倒目的时应不大于40°~60°
C.防滑目的对应不小于40°~60°,防翻倒目的时应不大于25°
D.防滑目的对应不大于40°~60°,防翻倒目的时应不小于25°
122、单项选择题 某中机船共有四个货舱,前后各二,某航次有一票气味货需配装于上甲板,以下部位恰当的是()。
A.No.4舱盖上
B.No.1和No.2的舱口间
C.No.3和No.4的舱口间
D.No.1舱盖上
123、单项选择题 杂货船的防堵舱容是指()
A.二层舱舱口四周1m范围以外的容积
B.底舱舱口四周1m范围以内的容积
C.底舱舱口四周1m范围以外的容积
D.二层舱舱口位容积及离舱口位四周1m以内的容积
124、单项选择题 ()应适用国际海事组织制定的《木材甲板货运输船的安全操作规则》。
A.甲板装有木才的船
B.专用木材船
C.舱内装有木材船
D.甲板和舱内均装载木材船
125、单项选择题
一般杂货船装载少时量固体散货时,应()
I装于大舱,
II与怕气味货分舱室装载,
III可用草席隔票,
IV污水井应用透水材料加以封盖
A.I、IV
B.I、II
C.I、II、III
D.I、II、III、IV
126、单项选择题 四货舱尾机船装载少量扬尘污染货宜选在()。
A.No.1二层舱
B.No.4二层舱
C.No.1底舱
D.No.2底舱
127、单项选择题 根据忌装原则,袋装水泥与砂糖的最低配装要求是()。
A.可以相邻堆装
B.不同室或不同舱
C.同室不相邻
D.B和C都可以
128、单项选择题 在货物配载图中,底舱的图示法以()表示。
A.侧视图
B.俯视图
C.正视图
D.A或B
129、单项选择题 下列()不属于易碎品货物。
A.玻璃
B.陶器
C.瓷器
D.液态氮钢瓶
130、单项选择题
货物配载图中,底舱如图所示。其中C的货位是()。

A.货舱的上层舱口位
B.货舱的上层中间部位(横向)
C.货舱的上层舱口位堆成倒三角形?
D.货舱的上层中间部位堆成倒三角形
131、单项选择题 装载机车、变压器等重件货物时,系固钢丝绳每端接头所用绳夹不少于(),其间距不小于()。
A.3个;15cm
B.4个;15cm
C.5个;10cm
D.4个;10cm
132、单项选择题 船舶由湿暖地区驶往寒冷地区时,货舱应()。
A.少量通风
B.大量通风
C.视货物具体情况而定
D.断绝通风
133、单项选择题 板料(Shooks)属于()。
A.危险品
B.液体气体
C.液体散装化学品
D.杂货
134、单项选择题 根据《SOLAS1974》的要求,下列()必须配备《货物系固手册》。
A.装载货物运输单元的船舶
B.固体散货船
C.液体散货船
D.以上都是
135、单项选择题 根据经验,单件重600千克以上的大桶装货物,其堆高就不超过()层
A.2
B.3
C.4
D.5
136、单项选择题 防止货物震动的衬垫材料主要有()。
A.撑木
B.厚木板.钢板等
C.塑料布.席子.锯木粉等
D.A、B、C均可
137、单项选择题 下列()不属于清洁货物。
A.镁砂
B.钨砂
C.滑石粉
D.石墨粉
138、单项选择题 焦宝石可与()混装
A.铁屑
B.木屑
C.氧化钙
D.五金
139、单项选择题
《CSS规则》中定义的货物运输单元包括()。
①车辆;②托盘;③中型散装容器;④集装箱;⑤火车车厢。
A.①②③
B.②③⑤
C.①②③⑤
D.①②③④⑤
140、单项选择题 根据忌装原则,玻璃和水果的最低配装要求是()。
A.不同舱
B.不相邻
C.不同室
D.无隔离要求
141、单项选择题 《货物系固手册》中列明的中型散装容器是指()。
A.一种刚性、半刚性或挠性轻便式容器,其装载容量不大于3m3
B.一种刚性、半刚性或挠性轻便式容器,其装载容量不大于5m3
C.一种刚性、半刚性或挠性轻便式容器,其装载容量不大于7m3
D.一种刚性、半刚性或挠性轻便式容器,其装载容量不大于9m3
142、单项选择题 根据忌装,箱装的涂有防锈油的机械零件和捆装棉布应()堆装。
A.两票货可以相邻装载
B.五金在下,其上堆装棉布,中间加衬垫
C.棉布在下,其上堆装五金,中间加以衬垫
D.A、B、C都可以
143、单项选择题 下列()不属于钢材类货物。
A.冷,热轧板材
B.冷,热轧不锈钢板
C.电器用钢板
D.废钢板材,废钢线材,废钢型材
144、单项选择题 使用机械通风时,一般货物的通风换气量为每小时换气()次为宜
A.2~4次
B.5~10次
C.15次以上
D.20次以上