手机用户可
保存上方二维码到手机中,在
微信扫一扫中右上角选择“从
相册选取二维码”即可。
1、问答题 什么是贴面类装修?常见贴面类装修有哪些?
点击查看答案
本题答案:贴面类装修指将各种天然石材或人造板块,通过绑、挂或粘贴于基层
本题解析:试题答案贴面类装修指将各种天然石材或人造板块,通过绑、挂或粘贴于基层表面的装修做法。常见贴面类装修有:天然石板类如花岗岩板,大理石板;人造石板类如水磨石板,水刷石板,剁斧石板;其他人造板块类如:各种面砖,瓷砖,锦砖。
2、单项选择题 天然状态下即可满足承载力要求、不需人工处理的地基称为()。
A.换填地基
B.人工地基
C.天然地基
D.强夯地基
点击查看答案
本题答案:C
本题解析:暂无解析
3、问答题 防火分区的原则有哪些?
点击查看答案
本题答案:(1)建筑物防火分区的大小取决于建筑物的耐火等级和建筑的层数
本题解析:试题答案(1)建筑物防火分区的大小取决于建筑物的耐火等级和建筑的层数。不同使用功能的建筑物,防火分区也不相同。防火分区采用防火墙、防火门、防火卷帘或水幕分隔。
(2)为了减少火灾造成的损失,对建筑防火分区的面积,按照建筑物耐火等级的不同,给予相应的限制,即耐火等级高的防火分区面积可以适当大些,耐火等级低的,防火分区面积就要小些。
(3)建筑物内如有上下层相通的走廊、自动扶梯等开口部位时,应按上、下连通层作为—个防火分区,其建筑面积的允许值取决于建筑的耐火等级及使用功能。多层大型公共建筑的中庭空间,若房间与共享空间连接的开口部位设有防火门窗并装有水幕,以及封闭屋盖装有自动排烟设施时,可不受此条限制。
(4)中庭空间是贯穿多层的封闭空间,极易造成烟火的四处蔓延。我国高层建筑中庭防火分区面积应按上、下层连通的面积叠加计算,当超过一个防火分区面积时,解决办法应遵循“高规”中的有关规定。
4、问答题 坡屋顶的承重结构有哪几种?分别在什么情况下采用?
点击查看答案
本题答案:坡屋顶的承重结构有
山墙承重:适用于开间尺寸
本题解析:试题答案坡屋顶的承重结构有
山墙承重:适用于开间尺寸较小的房间,如住宅、宿舍、旅馆等建筑;
屋架承重:多用于要求有较大空间的建筑,如食堂、教学楼等;
梁架承重:这种结构目前很少使用。
5、名词解释 净高
点击查看答案
本题答案:指房间的净空高度。即地面至顶板下皮的高度。
本题解析:试题答案指房间的净空高度。即地面至顶板下皮的高度。
6、问答题 高层建筑的承受的荷载?
点击查看答案
本题答案:高层建筑主要承受垂直荷载(自重及使用荷载等)、风荷载及地震荷
本题解析:试题答案高层建筑主要承受垂直荷载(自重及使用荷载等)、风荷载及地震荷载等三大荷载。
7、填空题 地面升起坡度与()、()、排距、座位排列方式等因素有关。
点击查看答案
本题答案:设计视点位置;视线升高值
本题解析:试题答案设计视点位置;视线升高值
8、单项选择题 预制装配墙悬壁式钢筋混凝土楼梯用于嵌固踏步板的墙体厚度不应<240mm,踏步的悬挑长度一般(),以保证嵌固段牢固。
A.≤2100mm
B.≤1500mm
C.≤2400mm
D.≤1800mm
点击查看答案
本题答案:D
本题解析:暂无解析
9、填空题 尺度处理的手法通常有三种,即()、()、()。
点击查看答案
本题答案:自然的尺度;夸张的尺度;亲切的尺度
本题解析:试题答案自然的尺度;夸张的尺度;亲切的尺度
10、单项选择题 砌块建筑中通常把高度在350㎜以下(质量一般在20㎏以内)的砌块称为()。
A.巨型砌块
B.大型砌块
C.中型砌块
D.小型砌块
点击查看答案
本题答案:D
本题解析:暂无解析
11、判断题 厂房吊车的实际安全空隙应不小于允许安全空隙。
点击查看答案
本题答案:对
本题解析:暂无解析
12、单项选择题 圈梁遇洞口中断,所设的附加圈梁与原圈梁的搭接长度应满足()。
A.≤2h且≤1000㎜
B.≤4h且≤1500㎜
C.≥2h且≥1000㎜
D.≥4h且≤≥1500㎜
点击查看答案
本题答案:C
本题解析:暂无解析
13、问答题 剖面设计的内容有哪些?
点击查看答案
本题答案:剖面设计的内容有确定房间的剖面形状和房间的高度;
本题解析:试题答案剖面设计的内容有确定房间的剖面形状和房间的高度;
确定建筑物的层数;
建筑空间组合和空间利用。
14、填空题 建筑是一个统称,它包括()和()。
点击查看答案
本题答案:建筑物;构筑物
本题解析:试题答案建筑物;构筑物
15、单项选择题 在玻璃幕墙立面划分中,通常竖挺间距不超过()。
A.1.5M
B.1.8M
C.1.2M
D.0.9M
点击查看答案
本题答案:A
本题解析:暂无解析
16、单项选择题 耐火等级为二级时楼板和吊顶的耐火极限应满足()。
A.1.50h,0.25h
B.1.00h,0.25h
C.1.50h,0.15h
D.1.00h,0.15h
点击查看答案
本题答案:B
本题解析:暂无解析
17、单项选择题 多层厂房的层数选择取决于很多因素。其中不包括下列哪项?()
A.生产工艺对层数的影响
B.城市规划及其他条件的影响
C.采光通风对层数的影响
D.经济因素的影响
点击查看答案
本题答案:C
本题解析:暂无解析
18、名词解释 承重墙
点击查看答案
本题答案:承受楼板或屋顶等传来的荷载的墙体。
本题解析:试题答案承受楼板或屋顶等传来的荷载的墙体。
19、填空题 建筑工程()、()和()等三个方面的内容
点击查看答案
本题答案:设计包括、结构设计和设备设计
本题解析:试题答案设计包括、结构设计和设备设计
20、问答题 建筑构件按燃烧性能分为哪几类,各有何特点?
点击查看答案
本题答案:建筑构件按燃烧性能分为三类,即:非燃烧体、燃烧体、难燃烧体。
本题解析:试题答案建筑构件按燃烧性能分为三类,即:非燃烧体、燃烧体、难燃烧体。非燃烧体指用非燃烧材料制成的构件,如天然石材、人工石材、金属材料等。在空气中受到火烧或高温作用时不起火、不微然、不碳化。燃烧体指用容易燃烧的材料制成的构件,如木材等。在空气中受到高温作用时立即起火燃烧且移走火源后仍继续燃烧或微然。难燃烧体指用不易燃烧的材料制成的构件,或者用燃烧材料制成,但用非燃烧材料作为保护层的构件,如沥青混凝土构件,木板条抹灰构件等。在空气中受到火烧或高温作用时难起火、难燃烧、难碳化,当火源移走后燃烧或微燃立即停止。
21、填空题 现浇梁板式楼板布置中,主梁应沿房间的()方向布置,次梁垂直于()方向布置。
点击查看答案
本题答案:短向;主梁
本题解析:试题答案短向;主梁
22、问答题 装配整体式楼板有什么特点?叠合楼板有何优越性?
点击查看答案
本题答案:装配整体式楼板,是在楼板中预制部分构件,然后在现场安装,再以
本题解析:试题答案装配整体式楼板,是在楼板中预制部分构件,然后在现场安装,再以整体浇筑的办法连接而成的楼板。它兼有整体性强和模板利用率高等特点。
叠合楼板以预制混凝土模板为永久模板而承受施工荷载,管线等均可事先埋在板面现浇叠合层内,现浇叠合层内只需配少量支座负筋。预制薄板底面平整,作为顶棚可直接喷浆或贴墙纸。叠合楼板具有良好的整体性,楼板跨度大,厚度小,结构自重较轻。
23、单项选择题 在楼梯形式中,不宜用于疏散楼梯的是()。
A.直跑楼梯
B.两跑楼梯
C.剪刀楼梯
D.螺旋形楼梯
点击查看答案
本题答案:D
本题解析:暂无解析
24、问答题 提高墙体的热阻的措施有哪些?
点击查看答案
本题答案:增加墙体厚度,选择导热系数小的墙体材料,采取隔汽措施。
本题解析:试题答案增加墙体厚度,选择导热系数小的墙体材料,采取隔汽措施。
25、填空题 房间的剖面形状主要是根据房间使用功能要求来确定,同时要考虑()、()和()等方面的影响。
点击查看答案
本题答案:物质技术、经济条件、空间艺术效果
本题解析:试题答案物质技术、经济条件、空间艺术效果
26、单项选择题 为了搬运家具设备的方便和通行的顺畅,楼梯平台净宽不应小于楼梯段净宽,并且不小于()m.
A.0.8
B.0.9
C.1.0
D.1.1
点击查看答案
本题答案:D
本题解析:暂无解析
27、填空题 混凝土基础的断面形式可以做成()、()和()。当基础宽度大于350㎜时,基础断面多为()。
点击查看答案
本题答案:矩形;台阶形;锥形;阶梯形
本题解析:试题答案矩形;台阶形;锥形;阶梯形
28、单项选择题 台阶踏步高度比较平缓,每级高度一般为?()
A.50~100mm
B.100~150mm
C.150~200mm
D.200~250mm
点击查看答案
本题答案:B
本题解析:暂无解析
29、问答题 楼梯主要由哪些部分组成?各部分的作用和要求是什么?
点击查看答案
本题答案:楼梯由三大组成部分梯段----设有踏步供楼层间上下行走的通道
本题解析:试题答案楼梯由三大组成部分梯段----设有踏步供楼层间上下行走的通道段落。是楼梯的主要使用和承重部分。踏步数量要求:不超过18级,不少于3级。平台----连接两个相邻楼梯段的水平部分。楼层平台:与楼层标高一致的平台中间平台:介于两个相邻楼层之间的平台作用:缓解疲劳,转向。栏杆(栏板)和扶手----装设于楼梯段和平台的边缘作用:栏杆起围护作用,扶手作依扶用。栏杆扶手的设计,应考虑坚固、安全、适用和美观等
30、问答题 平天窗有哪些防护措施?
点击查看答案
本题答案:平天窗的防护措施有:
(1)为防止玻璃被冰雹等外
本题解析:试题答案平天窗的防护措施有:
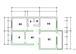
(1)为防止玻璃被冰雹等外力击碎落下伤人,可在玻璃下设防护网并用铁托固定或采用安全玻璃等;
(2)防眩光可选择有扩散性的透光材料,如夹铅丝、压花、磨砂玻璃等;
(3)防辐射热采用双层中空玻璃、吸热玻璃,可减少辐射热,同时也可以隔热、保温等。
31、填空题 火灾蔓延的方式有()、()和()。
点击查看答案
本题答案:热的传导;热的辐射;热的对流
本题解析:试题答案热的传导;热的辐射;热的对流
32、单项选择题 一般供单人通行的楼梯净宽度应不小于()。
A.650㎜
B.750㎜
C.850㎜
D.900㎜
点击查看答案
本题答案:C
本题解析:暂无解析
33、单项选择题 钢筋混凝土板瓦屋面的面层通常可用()。
A.面砖
B.木板
C.平瓦
D.平瓦、陶瓷面砖
点击查看答案
本题答案:D
本题解析:暂无解析
34、单项选择题 由维尼奥拉与泡达设计的()被视为“第一座巴洛克建筑”。
A.坦比哀多
B.罗马耶稣会教堂
C.罗浮宫
D.比萨广场
点击查看答案
本题答案:B
本题解析:暂无解析
35、单项选择题 供人们居住及进行社会活动等非生产性的建筑称为()。
A.工业建筑
B.农业建筑
C.民用建筑
D.综合性建筑
点击查看答案
本题答案:C
本题解析:暂无解析
36、填空题 屋顶按采用材料和结构类型的不同可分为()、()和()。
点击查看答案
本题答案:平屋顶;坡屋顶;其他形式的屋顶。
本题解析:试题答案平屋顶;坡屋顶;其他形式的屋顶。
37、单项选择题 建筑物的使用部分是指()。
A.主要使用房间和交通联系部分
B.主要使用房间和辅助使用房间
C.使用房间和交通联系部分
D.房间和楼电梯等;
点击查看答案
本题答案:B
本题解析:暂无解析
38、单项选择题 屋面防水等级为Ⅳ级的建筑物,防水层使用年限的要求为()。
A.25年
B.15年
C.10年
D.5年
点击查看答案
本题答案:D
本题解析:暂无解析
39、问答题 建设工程质量管理条例第四章规定,工程项目部的那三者负质量责任制?建筑施工企业进行安全生产考核的三类人员指哪些人员?
点击查看答案
本题答案:工程项目部的项目经理,技术负责人,施工管理负责人。三类
本题解析:试题答案工程项目部的项目经理,技术负责人,施工管理负责人。三类人员指:企业主要负责人、项目负责人、专职安全生产管理人员
40、问答题 绘图题:用图示例说明贴面类墙面装修构造层次及材料做法。
点击查看答案
本题答案:
试题答案
41、问答题 箱形基础
点击查看答案
本题答案:当板式基础埋深较深,并有地下室时,一般采用箱形基础。箱
本题解析:试题答案当板式基础埋深较深,并有地下室时,一般采用箱形基础。箱形基础由底板、顶板和侧墙组成。这种基础整体性强,能承受很大的弯矩。
42、问答题 简述楼地层的设计要求。
点击查看答案
本题答案:(1)满足坚固、安全要求楼地层应具有足够的强度和刚度,
本题解析:试题答案(1)满足坚固、安全要求楼地层应具有足够的强度和刚度,在荷载作用下安全可靠。
(2)具有一定的隔声能力楼层之间的噪声传播主要有两个途径,即空气传声和固体传声。楼层地面隔声主要是指隔绝固体传声,通常采取以下措施:
①楼板表面铺设弹性材料,如地毯等。
②设置浮筑式楼板。如在楼板结构层与面层之间加设片状、条状或块状的弹性垫层。
③设置吊顶棚。可结合室内空间要求,在楼板下吊顶棚,对隔声要求高的房间,还可在顶棚上铺设吸声材料,加强隔声效果。
(3)满足防火、热工等方面的要求。正确选择构件的材料和做法,使其满足保温、隔热等要求,并符合防火规范的规定。
(4)满足建筑经济的要求。结合建筑物的质量标准、使用要求和施工技术条件,选择经济合理的结构形式和构造方案,适应建筑工业化要求,加快建设速度。
43、填空题 地基分为()和()两大类。
点击查看答案
本题答案:人工地基、天然地基
本题解析:试题答案人工地基、天然地基
44、填空题 厂房按层数分()、()、()。
点击查看答案
本题答案:单层厂房;多层厂房;混合层数厂房
本题解析:试题答案单层厂房;多层厂房;混合层数厂房
45、单项选择题 彩板钢门窗的特点是()。
A.易锈蚀,需经常进行表面油漆维护
B.密闭性能较差,不能用于有洁净、防尘要求的房间
C.质量轻、硬度高、采光面积大
D.断面形式简单,安装快速方便
点击查看答案
本题答案:C
本题解析:暂无解析
46、问答题 请绘出油毡防水平屋面的构造图(画出其构造层次图,并在图上注明各层做法)。
点击查看答案
本题答案:
试题答案
47、问答题 如何确定楼梯的宽度?
点击查看答案
本题答案:确定楼梯的宽度时应考虑使用性质、人流通行情况和防火疏散要求等
本题解析:试题答案确定楼梯的宽度时应考虑使用性质、人流通行情况和防火疏散要求等因素。
48、问答题 绘图题:用图示例水平防潮层的几种位置确定。
点击查看答案
本题答案:
试题答案
49、填空题 构件自防水屋面根据板缝的处理不同可分为()、()、()三种。
点击查看答案
本题答案:嵌缝式;贴 缝式;搭盖式
本题解析:试题答案嵌缝式;贴缝式;搭盖式
50、填空题 我国隋代的河北()是世界上现存最早的敞肩式石拱桥。
点击查看答案
本题答案:赵县安济桥
本题解析:试题答案赵县安济桥
51、单项选择题 楼梯踏步防滑条应突出踏步面()
A.1~2mm
B.5mm
C.3~5mm
D.2~3mm
点击查看答案
本题答案:D
本题解析:暂无解析
52、单项选择题 平开木门扇的宽度一般不超过()mm。
A.600
B.900
C.1100
D.1200
点击查看答案
本题答案:B
本题解析:暂无解析
53、问答题 砖墙的承重方式有几种?
点击查看答案
本题答案:承重方式:砖墙的强度实质上砖砌体的抗压强度,取决于砖和砂浆的
本题解析:试题答案承重方式:砖墙的强度实质上砖砌体的抗压强度,取决于砖和砂浆的材料强度等级。
54、单项选择题 考虑建筑的防火及安全疏散,可采用的楼电梯类型有()
A.双跑梯剪刀梯、螺旋楼梯、自动扶梯
B.悬臂梯、双跑梯、弧形楼梯、剪刀梯
C.防烟楼梯、封闭楼梯、消防电梯、螺旋梯
D.剪刀梯、弧形楼梯、双跑梯、封闭楼梯
点击查看答案
本题答案:D
本题解析:暂无解析
55、填空题 墙板与柱的连接可分为()、()。
点击查看答案
本题答案:柔性连接;刚性连接
本题解析:试题答案柔性连接; 刚性连接
56、单项选择题 下列哪种砂浆既有较高的强度又有较好的和易性()。
A.水泥砂浆
B.石灰砂浆
C.混合砂浆
D.粘土砂浆
点击查看答案
本题答案:C
本题解析:暂无解析
57、名词解释 建筑火灾
点击查看答案
本题答案:建筑火灾是指建筑空间大约在100m3的室内火灾。
本题解析:
试题答案建筑火灾是指建筑空间大约在100m3的室内火灾。
58、问答题 常用于屋顶的隔热、降温措施有哪几种?
点击查看答案
本题答案:常用于屋顶的隔热、降温措施有通风隔热屋面、蓄水屋面、种植屋面
本题解析:试题答案常用于屋顶的隔热、降温措施有通风隔热屋面、蓄水屋面、种植屋面和反射降温屋面。
59、填空题 单个房间的平面设计内容是在整体建筑合理而适用的基础上,确定房间的()以及()等。
点击查看答案
本题答案:面积、平面形状和尺寸;门窗的大小和位置
本题解析:试题答案面积、平面形状和尺寸;门窗的大小和位置
60、单项选择题 混合砂浆中加入的石膏所起的作用是()
A.增加光感
B.早强
C.缓凝
D.节约材料
点击查看答案
本题答案:C
本题解析:暂无解析
61、单项选择题 施工规范规定的砖墙竖向灰缝宽度为()。
A.6-8mm
B.7-9mm
C.10-12mm
D.8-12mm
点击查看答案
本题答案:D
本题解析:暂无解析
62、问答题 土建工程师模板验收哪些?
点击查看答案
本题答案:1、模板的接缝不应漏浆;在浇筑混凝土前,木模板应浇水湿
本题解析:试题答案1、模板的接缝不应漏浆;在浇筑混凝土前,木模板应浇水湿润.但模板内不应有积水;
2、模板与混凝土的接触面应清理干净并涂刷隔离剂;
3、浇筑混凝土前,模板内的杂物应清理干净;
4、模板的支撑体系是否稳定牢固;
5、模板表面平整度是否满足规范要求;
6、模板及其支架应具有足够的承载能力、刚度。
7、固定在模板上的预埋件、预留孔和预留洞均不得遗漏,且应安装牢固;
8、对于跨度大于4米的模板要按规范起拱(1/1000---3/1000)。
63、多项选择题 人工加固地基的方法有()
A.换填法
B.预压法
C.振冲法
D.强夯法
E.深层搅拌法
点击查看答案
本题答案:A, B, C, D, E
本题解析:暂无解析
64、多项选择题 造成卷材屋面开裂的原因主要有()。
A.温度变形
B.翘曲变形
C.结构变形
D.卷材易老化、拉裂
点击查看答案
本题答案:A, B, C, D
本题解析:暂无解析
65、填空题 影响建筑构造的因素有()、()、()和其他因素等。
点击查看答案
本题答案:外力作用,自然气候,人为因素
本题解析:试题答案外力作用,自然气候,人为因素
66、单项选择题 在有檩体系中,瓦通常铺设在()组成的基层上。
A.檩条、屋面板、挂瓦条;
B.各类钢筋混凝土板;
C.木望板和檩条;
D.钢筋混凝土板、檩条和挂瓦条
点击查看答案
本题答案:D
本题解析:暂无解析
67、问答题 如何确定多层厂房楼梯、电梯的数量?
点击查看答案
本题答案:多层厂房的楼梯、电梯数量应根据人流、货流量大小,货物的性质以
本题解析:试题答案多层厂房的楼梯、电梯数量应根据人流、货流量大小,货物的性质以及人流、货流的方向,各层的工艺布置来确定。一般6层以下、长度在60~70m左右的厂房设置2台电梯。
68、填空题 根据使用要求和防火规范的规定等综合因素规定梯段净宽不应小于()m。
点击查看答案
本题答案:1.100
本题解析:试题答案1.100
69、单项选择题 预制钢筋混凝土楼板间应留缝隙的原因是[]
A.板宽规格的限制,实际尺寸小于标志尺寸
B.有利于预制板的制作
C.有利于加强板的强度
D.有利于房屋整体性的提高
点击查看答案
本题答案:A
本题解析:暂无解析
70、单项选择题 平天窗适用于()。
A.热加工车间
B.冷加工车间
C.民用建筑
D.一般冷加工车间或民用建筑
点击查看答案
本题答案:D
本题解析:暂无解析
71、判断题 对于大多数民用建筑而言,日照是确定房屋正面间距的主要依据。
点击查看答案
本题答案:对
本题解析:暂无解析
72、填空题 日照间距的计算,一般是以()为依据,其计算公式为()。
点击查看答案
本题答案:冬至日正午12时太阳能照射到南向后排房屋的底层窗台;L=H/
本题解析:试题答案冬至日正午12时太阳能照射到南向后排房屋的底层窗台;L=H/(tanh)
73、填空题 在民用建筑中,一般功能要求的大量性房间,其平面形状常采用()。
点击查看答案
本题答案:矩形
本题解析:试题答案矩形
74、单项选择题 楼板中预制板的类型是().
A.圆孔板
B.凹形板
C.空心板
D.实心板
点击查看答案
本题答案:C
本题解析:暂无解析
75、单项选择题 被美国著名旅游杂志《旅游者》评为最新现代化建筑的“世界新七大奇观之一”,并获得了2002年Emporis摩天大楼奖,获选为“最佳的世界摩天大楼的设计”是()
A、王国大厦
B、泰姬陵
C、佩特拉古城
D、马丘比丘印加遗址
点击查看答案
本题答案:A
本题解析:暂无解析
76、多项选择题 常用的预制钢筋混凝土楼板根据其截面形式可分为()几种类型。
A.实心平板
B.复合板
C.槽形板
D.夹芯板
E.空心板
点击查看答案
本题答案:A, C, E
本题解析:暂无解析
77、单项选择题 在()度以上的抗震设防地区要对砖石结构建筑提出限制和要求。
A.5
B.6
C.7
D.8
点击查看答案
本题答案:C
本题解析:暂无解析
78、问答题 三者的关系:
点击查看答案
本题答案:建筑功能是建筑的目的,是主导因素;物质技术条件是达到建筑目的
本题解析:试题答案建筑功能是建筑的目的,是主导因素;物质技术条件是达到建筑目的的手段;建筑形象则是建筑功能、建筑技术与建筑艺术内容的综合表现。而功能不同的各类建筑可以选择不同的结构形式和使用不同的建筑材料,形成不同的建筑形象。所以,在一定功能和技术条件下,应充分发挥设计者的主观作用,使建筑形象更加美观。
79、多项选择题 墙体的保温措施有()
A.增加外墙厚度
B.防止外墙中出现凝结水
C.防止外墙中出现空气渗透
D.以上措施均可
点击查看答案
本题答案:A, B, C, D
本题解析:暂无解析
80、填空题 建筑设计按三阶段设计可分为()、()和()等几个阶段。
点击查看答案
本题答案:初步设计、技术设计和施工图设计
本题解析:试题答案初步设计、技术设计和施工图设计
81、问答题 简述天然石板及人造石板墙面装修的构造要点。
点击查看答案
本题答案:天然石板及人造石板墙面装修的构造要点为:
①先在
本题解析:试题答案天然石板及人造石板墙面装修的构造要点为:
①先在墙内立ф8~ф10竖筋和横筋,形成钢筋网;
②石板上、下边预留孔,并用镀锌钢丝绑扎固定于网上;
③上下两块石板用不锈钢卡销固定;
④石板与墙间留20~30mm缝隙,校正后灌1∶3水泥砂浆,使石板与基层连接牢固。
82、问答题 中庭天窗的设计应满足哪些要求?
点击查看答案
本题答案:设计中庭天窗应满足以下要求:
(1)中庭内有良好
本题解析:试题答案设计中庭天窗应满足以下要求:
(1)中庭内有良好的光环境和热环境;
①应选择好天窗形式。
②要控制好中庭长宽高之间的比例关系。
③要妥善安排中庭各个墙面的反光性质。
(2)应选择安全可靠、热工性能好的天窗玻璃;
①夹层安全玻璃
②丙烯酸酯有机玻璃
③聚碳酸酯有机玻璃
④其它玻璃
(3)天窗应有良好的防水性能。
83、问答题 建筑的构成三要素间的辨证关系是什么?
点击查看答案
本题答案:构成建筑的三要素中,建筑功能是主导因素,它对建筑技术和
本题解析:试题答案构成建筑的三要素中,建筑功能是主导因素,它对建筑技术和建筑形象起决定作用。建筑技术是实现建筑功能的手段,它对功能起制约或促进发展的作用。建筑形象也是发展变化的,在相同的功能要求和建筑技术条件下,可以创造出不同的建筑形象,达到不同的美学条件。
84、填空题 确定建筑耐火极限的三个条件是()、()、()。
点击查看答 91ExAM.org案
本题答案:失去支撑能力;完整性被破坏;失去防火能
本题解析:试题答案失去支撑能力;完整性被破坏;失去防火能
85、问答题 影响建筑构造的因素。
点击查看答案
本题答案:(1)外力作用的影响
(2)自然气候的影响<
本题解析:试题答案(1)外力作用的影响
(2)自然气候的影响
(3)人为因素和其它因素的影响
86、单项选择题 装配式单厂抗风柱与屋架的连接传力应保证()。
A.垂直方向传力,水平方向不传力
B.垂直方向不传力,水平方向传力
C.垂直方向和水平方向均传力
D.垂直方向和水平方向均不传力
点击查看答案
本题答案:B
本题解析:暂无解析
87、填空题 基础按构造类型不同分为()、()、()、()等。
点击查看答案
本题答案:单独基础;条形基础;井格基础;片筏基础(或箱形基础)
本题解析:试题答案单独基础;条形基础;井格基础;片筏基础(或箱形基础)
88、单项选择题 通常房间内最小净高不宜低于()
来源:91考试网 91ExAm.org
A.2.0m
B.2.2m
C.2.4m
D.2.6m
点击查看答案
本题答案:B
本题解析:暂无解析
89、问答题 确定厂房宽度时应考虑哪几个方面因素?
点击查看答案
本题答案:确定厂房宽度时应考虑以下几个方面的因素:
(1)
本题解析:试题答案确定厂房宽度时应考虑以下几个方面的因素:
(1)生产工艺布置的影响;
(2)天然采光、自然通风的影响;
(3)与建筑经济的关系。
90、填空题 屋顶坡度的形成方法有()、()等两种。
点击查看答案
本题答案:材料找坡、结构找坡
本题解析:试题答案材料找坡、结构找坡
91、填空题 ()是构成其他厂房平面形式的基本单位。
点击查看答案
本题答案:单跨矩形平面
本题解析:试题答案单跨矩形平面
92、名词解释 视线升高值
点击查看答案
本题答案:即C值,是指后排的人的设计视线与前排的人头顶相切或超过时,与
本题解析:试题答案即C值,是指后排的人的设计视线与前排的人头顶相切或超过时,与前排的人眼睛之间的垂直距离。
93、填空题 房屋抗震设防的重点是对()度地震烈度的地区。
点击查看答案
本题答案:7,8,9
本题解析:试题答案7,8,9
94、填空题 门的主要功能是交通,有时也兼起()的作用;窗的主要作用是()。
点击查看答案
本题答案:通风和采光、采光、通风和眺望
本题解析:试题答案通风和采光、采光、通风和眺望
95、单项选择题 肋形楼盖楼板的经济跨度应为()
A.1.5~2.0m
B.1.5~2.5m
C.1.5~3.0m
D.1.5~3.5m
点击查看答案
本题答案:C
本题解析:暂无解析
96、填空题 均衡所涉及的是建筑物各部分()之间的轻重关系,稳定所涉及的是建筑物整体()之间的轻重关系。
点击查看答案
本题答案:左右、前后;上下
本题解析:试题答案左右、前后;上下
97、单项选择题 视线升高值与人眼睛到头顶的高度有关,一般取()mm。
A.180
B.160
C.120
D.100
点击查看答案
本题答案:C
本题解析:暂无解析
98、单项选择题 建筑平面的组合形式有()。
A.走道式组合、大小空间组合、单元式组合、主次空间组合
B.套间式组合、走道式组合、大厅式组合、单元式组合
C.大厅式组合、主次空间组合、走道式组合、套间式组合
D.单元式组合、套间式组合、主次空间式组合、走道式组合
点击查看答案
本题答案:B
本题解析:暂无解析
99、问答题 钢吊车梯的设置原则是什么?
点击查看答案
本题答案:钢吊车梯是为了方便吊车司机上下而设,其位置应在有操纵室的一边
本题解析:试题答案钢吊车梯是为了方便吊车司机上下而设,其位置应在有操纵室的一边;
为不妨碍生产,一般多放在端部第二柱距内;
每台吊车设一部吊车梯,在多跨连续的厂房中柱处设吊车梯,吊车梯坡道宜为60°,宽度600mm。
100、多项选择题 栏杆与梯段的连接方式主要有()
A.预埋铁件焊接
B.预埋孔洞插接
C.螺栓连接
D.其他
点击查看答案
本题答案:A, B, C
本题解析:暂无解析
101、填空题 平屋顶的保温材料的类型有()、()和()等三种。
点击查看答案
本题答案:散料类、整体类、板块类
本题解析:试题答案散料类、整体类、板块类
102、填空题 钢筋混凝土楼板,根据施工方法不同可分为()、装配式和装配整体式三种。
点击查看答案
本题答案:现浇式
本题解析:试题答案现浇式
103、名词解释 冷加工车间
点击查看答案
本题答案:冷加工车间指在正常温度条件下生产的车间。
本题解析:试题答案冷加工车间指在正常温度条件下生产的车间。
104、单项选择题 建筑技术包括()。
A.建筑材料与制品技术,结构技术,施工技术,电气技术
B.结构技术,施工技术,建筑材料与制品技术
C.施工技术,设备技术,电气技术,建筑材料与制品技术
D.设备技术,施工技术,电气技术,建筑材料与制品技术
点击查看答案
本题答案:B
本题解析:暂无解析
105、问答题 砖混结构的抗震构造措施主要有哪些?
点击查看答案
本题答案:砖混结构的抗震构造措施主要有:
①限制建筑物
本题解析:试题答案砖混结构的抗震构造措施主要有:
①限制建筑物的总高度和层数;
②限制横墙间距及墙体的局部尺寸;
③提高砌体砌筑砂浆的强度等级;
④设置圈梁;
⑤设置构造柱。
106、问答题 绘制钢筋砖过梁的基本形式。
点击查看答案
本题答案:
试题答案
107、填空题 在建筑工程中,一般把导热系数值小于()的材料称为保温材料。
点击查看答案
本题答案:0.25KJ(m.h.c)
本题解析:试题答案0.25KJ(m.h.c)
108、填空题 厂房的通风方式有两种,即()、()。
点击查看答案
本题答案:自然通风;机械通风
本题解析:试题答案自然通风;机械通风
109、问答题 简述影响建筑构造的因素。
点击查看答案
本题答案:影响建筑构造的因素包括外界环境因素(即外界各种自然条件
本题解析:试题答案影响建筑构造的因素包括外界环境因素(即外界各种自然条件和各种人为的因素)、建筑技术条件以及经济条件。
110、单项选择题 单层厂房的横向定位轴线是()的定位轴线。
A.平行于屋架
B.垂直于屋架
C.按1、2…编号
D.按A、B…编号
点击查看答案
本题答案:A
本题解析:暂无解析
111、单项选择题 楼梯段的踏步数为()。
A、5~8级
B、3~10级
C、3~18级
D、2~15级
点击查看答案
本题答案:C
本题解析:暂无解析
112、单项选择题 通常情况下,作为主要人流通行用的楼梯,其梯段宽度应至少满足两个人相对通行(即大于等于两股人流)。我国规定每股人流按()计算。
A.[0.55+(0~0.15)]m
B.[0.50+(0~0.15)]m
C.[0.60+(0~0.15)]m
D.[0.50+(0~0.20)]m
点击查看答案
本题答案:A
本题解析:暂无解析
113、多项选择题 建筑按照建筑结构形式进行分类,可分为()。
A.砖混结构承重
B.骨架承重
C.墙体承重
D.内骨架承重
E.空间结构承重
点击查看答案
本题答案:B, C, D, E
本题解析:暂无解析
114、问答题 平屋顶的坡度如何形成?——垫置找坡(材料找坡)、搁置找坡(结构找坡)。
点击查看答案
本题答案:平屋顶的坡度,可以用材料找出,通常叫“材料找坡”(垫置坡度)
本题解析:试题答案平屋顶的坡度,可以用材料找出,通常叫“材料找坡”(垫置坡度);也可以用结构板材带坡安装,通常叫“结构找坡”(搁置坡度)。平层面宜采用结构找坡,当采用材料找坡时,可用轻质材料或保温材料找坡。
115、单项选择题 单排布置时厨房开间尺寸一般应()
A.>1.2m
B.1.8m
C.≤1.8m
D.>1.5m
点击查看答案
本题答案:D
本题解析:暂无解析
116、填空题 窗台应向外形成一定坡度,要求坡度大于()。
点击查看答案
本题答案:20%
本题解析:试题答案20%
117、名词解释 半地下室
点击查看答案
本题答案:地下室室内地坪距室外地坪的高度为地下室净高的1/3~1/2时
本题解析:试题答案地下室室内地坪距室外地坪的高度为地下室净高的1/3~1/2时,称为全地下室
118、问答题 普通粘土砖墙的砖模尺寸与建筑模数是否一致?如何协调二者关系?
点击查看答案
本题答案:普通粘土砖墙的砖模数为125mm,建筑的基本模数为10
本题解析:试题答案普通粘土砖墙的砖模数为125mm,建筑的基本模数为100mm,二者不统一。在工程设计中房屋的开间和进深采用3M(300mm),为避免在实际施工中砍砖过多,常采取以下办法:墙体长度小于1.5m时,设计时宜使其符合砖模数,如:115mm、240mm、365mm、490mm、615mm、740mm等;墙段长度大于1.5m时,可不再考虑砖模数,以建筑模数为依据设计。
119、单项选择题 下选项哪种是民用建筑常用的结构类型?()
A.砌体结构
B.框架结构
C.空间结构
D.A、B、C都是
点击查看答案
本题答案:D
本题解析:暂无解析
120、问答题 确定砖墙厚度的因素主要有哪几种?
点击查看答案
本题答案:影响砖墙厚度的因素主要有:
①砖墙所用材料的
本题解析:试题答案影响砖墙厚度的因素主要有:
①砖墙所用材料的强度;
②墙体自身的稳定性要求;
③墙体的热工性能;
④墙体的隔声性能;
⑤砖的规格和砌式。
121、问答题 楼梯由哪几部分组成?各组成部分起何作用?
点击查看答案
本题答案:楼梯梯段、楼梯平台、扶手栏杆(板)
楼梯梯段
本题解析:试题答案楼梯梯段、楼梯平台、扶手栏杆(板)
楼梯梯段:供层间上下行走
楼梯平台:供楼梯转折、连通某个楼层或供使用者在攀登了一定的距离后略事休息
扶手栏杆:保证行走安全
122、问答题 混凝土的收缩和徐变有什么区别和联系?
点击查看答案
本题答案:在荷载保持不变的情况下随时间而增长的变形称为徐变,徐变
本题解析:试题答案在荷载保持不变的情况下随时间而增长的变形称为徐变,徐变不一定体积减小,混凝土在空气中结硬时体积减小的现象称为收缩。混凝土的组成和配合比对徐变和收缩的影响是相同的,混凝土的徐变和收缩都会使预应力结构中产生应力。
123、单项选择题 在面积定额指标中.所谓户均使用面积是指()
A.有效总面积与总户数之比
B.建筑总面积与总户数之比
C.居住总面积与总户数之比
D.使用总面积与总户数之比
点击查看答案
本题答案:D
本题解析:暂无解析
124、单项选择题 下列哪种建筑的屋面应采用有组织排水方式()
A.高度较低的简单建筑
B.积灰多的屋面
C.有腐蚀介质的屋面
D.降雨量较大地区的屋面
点击查看答案
本题答案:D
本题解析:暂无解析
125、名词解释 吊车跨度
点击查看答案
本题答案:吊车跨度是指吊车两条轨道中心线之间的距离。
本题解析:试题答案吊车跨度是指吊车两条轨道中心线之间的距离。
126、填空题 耐火等级为三级的一般民用建筑,层数不应超过();耐火等级为四级时,不应超过()。
点击查看答案
本题答案:五层;二层
本题解析:试题答案五层;二层
127、名词解释 有组织排水
点击查看答案
本题答案:有组织排水是指屋面雨水通过排水系统,有组织地排至室外地
本题解析:试题答案有组织排水是指屋面雨水通过排水系统,有组织地排至室外地面或地下管沟的一种排水方式。
128、填空题 木地面的构造方式有()、()和粘贴式三种。
点击查看答案
本题答案:空铺式;实铺式
本题解析:试题答案空铺式;实铺式
129、填空题 基础按构造类型不同分为()、()、()、片筏基础、箱形基础、桩基础等。
点击查看答案
本题答案:单独基础、条形基础、井格基础
本题解析:试题答案单独基础、条形基础、井格基础
130、问答题 柔性防水层面分为哪两大类?说明每类中各二种防水层名称?
点击查看答案
本题答案:柔性防水屋面两大类为:卷材防水屋面、涂膜防水屋面。本题解析:试题答案柔性防水屋面两大类为:卷材防水屋面、涂膜防水屋面。
卷材防水屋面中有:沥青防水卷材(如三毡四油)、高聚物改性沥青防水卷材(如SBS、APP)、合成高分子防水卷材(如三元乙丙、聚氯乙烯)
涂膜防水屋面中有:
1、沥青基防水涂料
2、高聚物改性沥青防水涂料
3、合成高分子防水涂料
131、填空题 散水的宽度一般为,当屋面为自由落水时,应比屋檐挑出宽度大()、()。
点击查看答案
本题答案:600~1000mm、150~200mmm
本题解析:试题答案600~1000mm、150~200mmm
132、单项选择题 按照《建筑设计防火规范》的确定,耐火等级为三级的建筑,层数不超过().
A.2
B.3
C.5
D.6
点击查看答案
本题答案:C
本题解析:暂无解析
133、单项选择题 用来支承门窗洞口上部的砌体和楼板传来的荷载、并把这些荷载传给洞口两侧墙体的承重构件称为()。
A.圈梁
B.过梁
C.连续梁
D.悬臂梁
点击查看答案
本题答案:B
本题解析:暂无解析
134、单项选择题 木窗洞口的宽度和高度均采用()mm的模数。
A.100
B.300
C.50
D.600
点击查看答案
本题答案:B
本题解析:暂无解析
135、填空题 建筑标准设计图有各地的和全国通用的,对建筑的施工图设计阶段有较大的帮助。它的主要内容是()。
点击查看答案
本题答案:构造设计
本题解析:试题答案构造设计
136、单项选择题 由骨架和面板材料组成的隔墙称为()
A.块材隔墙
B.板材隔墙
C.立筋式隔墙
D.幕墙
点击查看答案
本题答案:C
本题解析:暂无解析
137、问答题 构成建筑的三要素之间的辩证关系是什么?
点击查看答案
本题答案:构成建筑的三要素中,建筑功能是主导因素,它对建筑技术和
本题解析:试题答案构成建筑的三要素中,建筑功能是主导因素,它对建筑技术和建筑形象起决定作用。建筑技术是建造房屋的手段,它对功能又起约束和促进的作用。建筑形象是功能和技术的反应,在相同的功能要求和建筑技术条件下,如果能充分发挥设计者的主观作用,可以创造出不同的建筑形象,达到不同的美学效果。
138、问答题 基础梁有哪几种设置方式?
点击查看答案
本题答案:基础梁的设置方式有:
当基础埋深不大时,基础梁搁
本题解析:试题答案基础梁的设置方式有:
当基础埋深不大时,基础梁搁置在杯形基础的顶面上,或放在基础杯口上的垫块上;
当基础埋置较深时,基础梁可搁置于高杯形基础的顶面或柱的牛腿上。
139、单项选择题 关于楼梯的构造,说法正确的是()
A.单跑楼梯梯段的踏步数一般不超过15级
B.踏步宽度不应小于280mm
C.一个梯段的踏面数与踢面数相等
D.楼梯各部位的净空高度均不应小于2m
点击查看答案
本题答案:D
本题解析:暂无解析
140、问答题 窗洞口上部过梁的常用做法有哪几种,各自的适用范围如何?
点击查看答案
本题答案:有三种,即砖拱过梁、钢筋砖过梁和钢筋混凝土过梁。砖拱过梁适用
本题解析:试题答案有三种,即砖拱过梁、钢筋砖过梁和钢筋混凝土过梁。砖拱过梁适用于洞口跨度为1.8m以内;钢筋砖过梁为2.0m以内。二者不宜用于洞口上有集中荷载、振动较大、地基土质不均匀或地震区等情况。钢筋混凝土过梁,具有坚固耐用、施工简便等特点,可用于较大洞口或有集中荷载等情况,目前广泛采用。
141、问答题 建筑立面设计的处理手法主要有哪些?
点击查看答案
本题答案:建筑立面设计的处理手法主要有比例与尺度处理,虚实与凹凸处理,
本题解析:试题答案建筑立面设计的处理手法主要有比例与尺度处理,虚实与凹凸处理,窗与线条处理,色彩与质感处理,重点与细部处理。
142、问答题 施工场地总平面布置图的主要内容是什么?
点击查看答案
本题答案:(1)全部地上、地下建筑物、构筑物;
(2)
本题解析:试题答案(1)全部地上、地下建筑物、构筑物;
(2)各种施工机械设备的布置;
(3)周围道路和建筑及场内道路布置;
(4)生产性、生活性临时设施;
(5)临时供水(含消防)、供电线路及水源、电源;
(6)各种材料及半成品堆放仓库。
143、填空题 木门窗的安装方法有()和()两种。
点击查看答案
本题答案:立口;塞口
本题解析:试题答案立口;塞口
144、填空题 平屋顶排水坡度的形式方法有()和()两种。
点击查看答案
本题答案:材料找坡;结构找坡
本题解析:试题答案材料找坡;结构找坡
145、单项选择题 根据基础埋置深度的不同,基础有深基础、浅基础和不埋基础之分。当基础埋置深度大于() 时称为深基础。
A.0.5m
B.2.0m
C.4.0m
D.5.0m
点击查看答案
本题答案:C
本题解析:暂无解析
146、单项选择题 初步设计的具体图纸和文件有()。注:①设计总说明②建筑总平面图③各层平面图、剖面图、立面图④工程概算书⑤建筑构造详图
A.②③④⑤
B.①②③④
C.①③④
D.②④⑤
点击查看答案
本题答案:B
本题解析:暂无解析
147、问答题 有关单层厂房的技术名词:跨度、柱距、厂房高度、柱网
点击查看答案
本题答案:跨度:指单层工业厂房中两条纵向轴线之间的距离。
本题解析:试题答案跨度:指单层工业厂房中两条纵向轴线之间的距离。
柱距:指单层工业厂房中两条纵向轴线之间的距离。
厂房高度:单层工业厂房中柱顶高度和牛腿面的高度。
柱网:单层厂房、多层厂房中,承重结构柱子在平面排列时形成的网格成为柱网。
148、问答题 绘图题:图示栏杆与扶手的四种连接方式。
点击查看答案
本题答案:
试题答案

149、填空题 预制板可直接搁置在墙上或梁上,为满足结构要求,通常应满足板端的搁置长度。一般情况下,板搁置在梁上应不小于();搁置在内墙上不小于()。
点击查看答案
本题答案:80㎜;100㎜
本题解析:试题答案80㎜;100㎜
150、填空题 圈梁的作用是()。
点击查看答案
本题答案:增加房屋的整体性
本题解析:试题答案增加房屋的整体性
151、填空题 公共建筑的走道净宽一般不应小于两股人流通行时所需的宽度,因此,走道的净宽一般不应小于()㎜。
点击查看答案
本题答案:1100
本题解析:试题答案1100
152、问答题 厨房平面设计应注意哪些问题?
点击查看答案
本题答案:厨房设计应注意以下几个方面:
①有适当的面积
本题解析:试题答案厨房设计应注意以下几个方面:
①有适当的面积,以满足设备和操作要求。采用管道煤气、液化石油气为燃料的厨房面积不应小于3.5㎡;以加工煤为燃料的厨房面积不应小于4㎡;以原煤为燃料的厨房面积不应小于4.5㎡;以薪柴为燃料的厨房面积不应小于5.5㎡。
②设备布置应符合操作流程,并保证必要的操作空间。单面布置设备时,厨房净宽不应小于1.4m。双面布置设备时,厨房净宽不应小于1.7m。
③厨房应有外窗或开向走廊的窗户,窗地比不应小于1/7,通风开口面积不应小于房间地面面积的1/10,并不得小于O.8㎡,炉灶上部应设排除油烟的设备或预留设备位置。
153、问答题 简述卷材防水屋面基本构造层次及作用。
点击查看答案
本题答案:①结构层:预制或现浇钢筋混凝土屋面板。应具有足够的强度和刚度
本题解析:试题答案①结构层:预制或现浇钢筋混凝土屋面板。应具有足够的强度和刚度。②找平层:为了使防水卷才能铺贴在平整的基层上。③结合层:使卷材防水层与找平层粘结牢固。④防水层:卷材防水屋面的主要构造层次,用防水卷材和胶结材料交替粘结而形成。⑤保护层:保护防水层不致因日照和气候等的作用迅速老化,从而延长防水层的使用耐久年限。
154、单项选择题 住宅建筑常采用()的尺度。
A.自然
B.夸张
C.亲切
D.相似
点击查看答案
本题答案:A
本题解析:暂无解析
155、单项选择题 半砖墙的顶部与楼板相接处为满足连接紧密,其顶部常采用()或预留30㎜左右的缝隙,每隔1m用木楔打紧。
A.嵌水泥砂浆
B.立砖斜砌
C.半砖顺砌
D.浇细石混凝土
点击查看答案
本题答案:B
本题解析:暂无解析
156、问答题 扩大柱网的特点是什么?
点击查看答案
本题答案:扩大柱网的特点是:
(1)提高厂房面积的利用率;
本题解析:试题答案扩大柱网的特点是:
(1)提高厂房面积的利用率;
(2)使厂房具有灵活性和通用性;
(3)有利于结构施工。
157、单项选择题 建筑物因受到温度变化的影响而产生热胀冷缩,使结构构件内部产生附加应力而变形,当建筑物较长 时为避免建筑物因热胀冷缩较大而使结构构件产生裂缝,建筑中需设置()。
A.伸缩缝
B.沉降缝
C.防震缝
D.构造缝
点击查看答案
本题答案:A
本题解析:暂无解析
158、填空题 屋面天沟的净宽度应不小于()mm,沟底沿长度方向设置纵坡坡向雨水口,纵坡坡度一般为()。
点击查看答案
本题答案:200、0.5%--1%
本题解析:试题答案200、0.5%--1%
159、单项选择题 挑阳台的结构布置可采用()方式。
A、挑梁搭板
B、砖墙承重
C、梁板结构
D、框架承重
点击查看答案
本题答案:A
本题解析:暂无解析
160、单项选择题 水磨石地面是()。
A、整体类地面
B、块材类地面
C、木地面
D、人造软质品地面
点击查看答案
本题答案:A
本题解析:暂无解析
161、判断题 艾菲尔是英国的()
点击查看答案
本题答案:错
本题解析:法国
162、单项选择题 以下不是建筑物的组成构件().
A.基础
B.屋顶
C.地下室
D.门窗
点击查看答案
本题答案:C
本题解析:暂无解析
163、填空题&nbs p; 建筑物的耐火等级由()和()确定,建筑物的耐火等级一般分为()级。
点击查看答案
本题答案:建筑构件的耐火极限;构件的燃烧性能;四
本题解析:试题答案建筑构件的耐火极限;构件的燃烧性能;四
164、填空题 设计程序中的两阶段设计是指()和()。
点击查看答案
本题答案:初步设计;施工图设计
本题解析:试题答案初步设计;施工图设计
165、问答题 开敞楼梯间、封闭楼梯间和防烟楼梯间的相互区别和适用范围?
点击查看答案
本题答案:普通楼梯间是开敞的,用于低层和多层建筑;封闭楼梯间是在梯间与
本题解析:试题答案普通楼梯间是开敞的,用于低层和多层建筑;封闭楼梯间是在梯间与楼层之间设置有防火门,用于一定范围的建筑物;防烟楼梯间是封闭梯间前还设置有防烟前室,用于高层建筑。
166、单项选择题 构成建筑的基本要素有哪些?()
A.建筑功能、物质技术条件、建筑形象
B.建筑功能、建筑形象、建筑方位
C.建筑功能、建筑技术、物质技术条件
D.建筑功能、建筑技术、建筑方位
点击查看答案
本题答案:A
本题解析:暂无解析
167、单项选择题 爱因斯坦天文台是哪一流派的建筑?()
A.未来派
B.风格派
C.表现派
D.构成派
点击查看答案
本题答案:C
本题解析:暂无解析
168、单项选择题 窑洞是中国古代典型的民居形式之一,常见于我国()地区。
A.云南
B.岭南
C.西北
D.新疆
点击查看答案
本题答案:C
本题解析:暂无解析
169、判断题 施工图的总平面加上配景和色彩,更直观易懂。
点击查看答案
本题答案:错
本题解析:不应加与施工无关的内容
170、单项选择题 墙脚采用()等材料,可不设防潮层。①粘土砖②砌块③条石④混凝土
A.①③④
B.②③⑤
C.①②④
D.③④
点击查看答案
本题答案:D
本题解析:暂无解析
171、问答题 栏杆和扶手的作用和设计要求各是什么?
点击查看答案
本题答案:栏杆起围护作用,扶手作依扶用,并兼起装饰作用。
本题解析:试题答案栏杆起围护作用,扶手作依扶用,并兼起装饰作用。
栏杆扶手的设计,应考虑坚固、安全、适用和美观等。
172、单项选择题 下面哪个不属于地坪的基本组成部分().
A.面层
B.结构层
C.基层
D.附加层
点击查看答案
本题答案:B
本题解析:暂无解析
173、单项选择题 重型机械制造工业主要采用()。
A.单层厂房
B.多层厂房
C.混合层次厂房
D.高层厂房
点击查看答案
本题答案:A
本题解析:暂无解析
174、问答题 构造柱的作用及加设原则是什么?
点击查看答案
本题答案:作用是与圈梁一起形成封闭骨架,提高砖混结构的抗震能力。加设原
本题解析:试题答案作用是与圈梁一起形成封闭骨架,提高砖混结构的抗震能力。加设原则主要有:①外墙转角;②内外墙交接处(内纵外横,外纵内横);③楼梯间内墙及较大洞口两侧。
175、问答题
下图为某户住宅平面图,拟设计该套建筑面积为60—70m2,请标注合理的尺寸(开间、进深、窗口门洞等); 用铅笔等绘图工具绘制其平面图;(需要布置简单家具,卫生洁具和厨房设备) 要求:(1)平面图1:100; (2)家具尺度要合理; (3)图纸整洁清晰。
点击查看答案
本题答案:
试题答案
176、单项选择题 对于大型公共建筑,如影剧院的观众厅,门的数量和总宽度应按每100人()mm宽计算,且每扇门宽度不宜小于1400mm。
A.1200
B.500
C.600
D.1400
点击查看答案
本题答案:C
本题解析:暂无解析
177、填空题 我国现行基本模数的数值()mm,表示符号为(),房屋9的开间、进深采用()。
点击查看答案
本题答案:100;M;3M
本题解析:试题答案100;M;3M
178、填空题 公共建筑总高度超过()者为高层(不包括单层主体建筑);高度超过()时,为超高层建筑。
点击查看答案
本题答案:24m、100m
本题解析:试题答案24m、100m
179、填空题 厂房按用途分()、()、()、()、()。
点击查看答案
本题答案:主要生产厂房;辅助生产厂房;动力用厂房;贮藏用建筑;运输用建
本题解析:试题答案主要生产厂房;辅助生产厂房;动力用厂房;贮藏用建筑;运输用建筑
180、多项选择题 变形缝按其作用的不同分为()。
A.装饰缝
B.伸缩缝
C.沉降缝
D.防震缝
E.构造缝
点击查看答案
本题答案:B, C, D
本题解析:暂无解析
181、问答题 防烟排烟的方式有哪几种?各有何特点?
点击查看答案
本题答案:防烟排烟的方式有以下几种:
(1)强力加压的机械
本题解析:试题答案防烟排烟的方式有以下几种:
(1)强力加压的机械排烟方式:是采用机械送风系统向需要保护的部位输送大量新鲜空气,如有排气和回风系统时则相应关闭,从而造成正压区域,使烟气不能袭入其间,并在非正压区内把烟气排出。主要用于防烟楼梯间及合用前室等部位;
(2)强制减压的机械排烟方式:是在各排烟区段内设置机械排烟装置,起火后关闭各区相应的开口部分并开动排烟机,将四处蔓延的烟气通过排烟系统排向楼外。当消防电梯前室、封闭电梯厅、疏散楼梯间及前室等部位以此法排烟时,其墙、门等构件应有密封措施,以免因负压而通过缝隙继续引入烟气。主要用于一些封闭空间、中庭、地下室及疏散走道等。
(3)自然排烟方式:是以自然排烟竖井(排烟塔)或开口部位(含凹部、阳台及外门窗等)向上或向外排烟。竖井是利用火灾时热压差产生的抽力来排除烟气的。具有很大的排烟热能力。以开口部分向外排烟时,在某些情况下室外风向风力可能产生不利的影响。所以排烟效果是不够稳定的。但与其它排烟方式相比,自然排烟最为经济、简便,故仍适宜尽量采用。我国规定公共建筑超过50m或居住建筑超过lOOm高时便不应采用自然方式。
182、问答题 上悬式天窗扇和中悬式天窗扇各有何特点?其开启角度是多少度?
点击查看答案
本题答案:上悬式天窗扇的特点是防雨性能好,但窗扇上方开启角度不能大于4
本题解析:试题答案上悬式天窗扇的特点是防雨性能好,但窗扇上方开启角度不能大于45°,故通风较差;
中悬式天窗扇的特点是窗扇开启角度可达60°~80°,故通风流畅,但防雨性能欠佳。
183、问答题 学习建筑构造的目的何在?
点击查看答案
本题答案:建筑构造是一门研究建筑物各组成部分的构造原理和构造方法
本题解析:试题答案建筑构造是一门研究建筑物各组成部分的构造原理和构造方法的学科。它是建筑设计不可分割的一部分,其任务是根据建筑物的功能、材料性能、受力情况、施工方法和建筑形象等要求选择经济合理的构造方案,以作为建筑设计中综合解决技术问题及进行施工图设计的依据。建筑构造是一门实践性和综合性都很强的学科,需要全面地、综合地运用有关知识。只有这样,才能提出合理且技术先进的构造方案,从而使整个设计符合适用、安全、经济、美观的建筑准则。
184、判断题 为了消防和检修屋面的需要及构造简化,一般厂房的两端和变形缝两侧各在一个柱距内不设天窗。
点击查看答案
本题答案:对
本题解析:暂无解析
185、单项选择题 楼梯构造不正确的是()
A.楼梯踏步的踏面应光洁、耐磨、易于清扫
B.水磨石面层的楼梯踏步近踏口处,一般不做防滑处理
C.水泥砂浆面层的楼梯踏步近踏口处,可不做防滑处理
D.楼梯栏杆应与踏步有可靠连接
点击查看答案
本题答案:B
本题解析:暂无解析
186、问答题 墙体和屋面节能工程使用的保温隔热材料,其哪些性能和强度应符合设计要求?
点击查看答案
本题答案:保温隔热材料的导热系数、密度、抗压强度或压缩强度、燃烧
本题解析:试题答案保温隔热材料的导热系数、密度、抗压强度或压缩强度、燃烧性能应符合设计要求。
187、填空题 木窗主要由()、()、()和()组成。
点击查看答案
本题答案:窗框、窗扇、五金零件和附件
本题解析:试题答案窗框、窗扇、五金零件和附件
188、填空题 我国最长的悬索桥是()。
点击查看答案
本题答案:江阴桥
本题解析:试题答案江阴桥
189、判断题 单层厂房设计中,山墙处为了使抗风柱能通到屋架上弦,将横向定位轴线从柱中心线外移600mm。
点击查看答案
本题答案:错
本题解析:轴线不动,将柱从定位轴线内移600mm。
190、名词解释 房屋的净高
点击查看答案
本题答案:是指下层地板面或楼板上表面到上层楼板下表面之间的距离。
本题解析:试题答案是指下层地板面或楼板上表面到上层楼板下表面之间的距离。
191、问答题 按施工方法分
点击查看答案
本题答案:1.现浇、现砌式:这种施工方法是指主要构件均在施工现场砌筑(
本题解析:试题答案1.现浇、现砌式:这种施工方法是指主要构件均在施工现场砌筑(如砖墙等)或浇筑(如钢筋混凝土构件等)。
2.预制、装配件:这种施工方法是指主要构件在加工厂预制、施工现场进行装配。
3.部分现浇现砌、部分装配式:这种施工方法是一部分构件在现场浇筑或砌筑(大多为竖向构件),一部分构件为预制吊装(大多为水平构件)。
192、名词解释 封闭式楼梯间
点击查看答案
本题答案:封闭式楼梯间是指设有能阻挡烟气的双向弹簧门的楼梯间。
本题解析:试题答案封闭式楼梯间是指设有能阻挡烟气的双向弹簧门的楼梯间。
193、问答题 建筑空间利用有哪些处理手法?
点击查看答案
本题答案:建筑空间利用有房间上部空间的利用,夹层空间的利用,楼梯和走道
本题解析:试题答案建筑空间利用有房间上部空间的利用,夹层空间的利用,楼梯和走道空间的利用,以及结构空间的利用等处理手法。
194、问答题 什么叫防火分区?
点击查看答案
本题答案:防火分区是指用具有一定耐火能力的墙、楼板等分隔构件作为边界,
本题解析:试题答案防火分区是指用具有一定耐火能力的墙、楼板等分隔构件作为边界,能够在一定时间内把火灾控制在某一范围的基本空间。
195、单项选择题 预制板的支撑方式有()。
A.直板式和曲板式
B.板式和梁式
C.梁式和曲梁式
D.板式和梁板式
点击查看答案
本题答案:D
本题解析:暂无解析
196、单项选择题 大厅式组合一般适用于()建筑类型。
A.剧院、电影院、体育馆
B.火车站、浴室
C.医院、中小学、办公楼
D.百货商店
点击查看答案
本题答案:A
本题解析:暂无解析
197、名词解释 总高度
点击查看答案
本题答案:指室外地坪至檐口顶部的总高度。
本题解析:试题答案指室外地坪至檐口顶部的总高度。
198、问答题 建筑设计的主要依据是什么?
点击查看答案
本题答案:建筑设计的主要依据是:
(1)人体尺度及人体活动
本题解析:试题答案建筑设计的主要依据是:
(1)人体尺度及人体活动所需的空间尺度
(2)家具、设备尺寸和使用它们所需的必要空间。
(3)气象条件(建设地区的温度、湿度、日照、雨雪、风向、风速)、地形、地质、地震烈度及水文
(4)有关设计规范和标准。
199、单项选择题 楼板应保证在自重和使用荷载作用下安全可靠,不发生任何破坏的性能要求称为()。
A.刚度要求
B.强度要求
C.柔度要求
D.经济要求
点击查看答案
本题答案:B
本题解析:暂无解析
200、填空题 地震烈度为12度,建筑物抗震措施主要用于()地震区。
点击查看答案
本题答案:6~9度
本题解析:试题答案6~9度
题库试看结束后
微信扫下方二维码即可打包下载完整版《★土木建筑工程》题库
手机用户可保存上方二维码到手机中,在微信扫一扫中右上角选择“从相册选取二维码”即可。
题库试看结束后微信扫下方二维码即可打包下载完整版《土木建筑工程:房屋建筑学》题库,分栏、分答案解析排版、小字体方便打印背记!经广大会员朋友实战检验,此方法考试通过率大大提高!绝对是您考试过关的不二利器!
手机用户可保存上方二维码到手机中,在微信扫一扫中右上角选择“从相册选取二维码”即可。
微信搜索关注"91考试网"公众号,领30元,获取公务员事业编教师考试资料40G